こんにちは!本日も打ち合わせに行ってきます。
このところ打ち合わせが多いです。早く新規工事を開始したい所ではあります;;
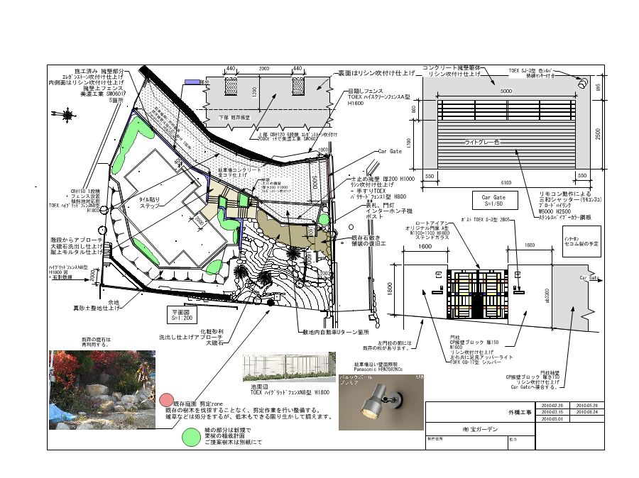
そんな中、この夏過ぎに着工予定の
大型物件のプランをコツコツすすめさせていただいております。

そうですねー、いままでで
一番大きいと思います。
この図面で1/200ですから、いつもなら1/100のスケールで作図しますので単純に倍以上の大きさです。
着工と完成が楽しみです。特注の門扉をお付けしますが、それのできばえも今からすごく楽しみです。
ステンドガラスとロートアイアンの門扉!それを電気錠でセキュリティします!
ではでは、がんばろー!
[0回]
PR