
んー、もう深夜か。
図面を作成しておりました。
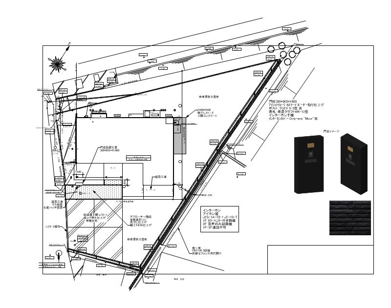
F様邸です。敷地が広っ!
建築も大きくてゆったり。まことにうらやまC
ちょっとこちら工期がありませんので、
早々に着手したいところなのです。段取り、段取り。
厄年なんですよね。。。で、新年から門戸厄神さんに行ってきました。で、10日はえべっさんに行ってきました。
厄を払ってもらい、そして商売繁盛のえべっさんへも行った。ちょー神頼みでございました。
あとは健康管理と言う事ですね。役員も終わった事だし、ほんとうにがんばらなきゃいけない一年となりますナ。
[0回]
PR