宝ガーデンのブログ!
外構工事、エクステリア、造園工事、ウッドデッキ、左官、舗装、吹き付け、家の外回りならなんなりと!宝塚市の宝ガーデンです^^
[
43
] [
42
] [
41
] [
40
] [
39
] [37] [
36
] [
35
] [
34
] [
33
] [
32
]
[PR]
2026/02/06 (Fri)
×
[PR]上記の広告は3ヶ月以上新規記事投稿のないブログに表示されています。新しい記事を書く事で広告が消えます。
|
ど迫力の外観になりそう
2010/05/21 (Fri)
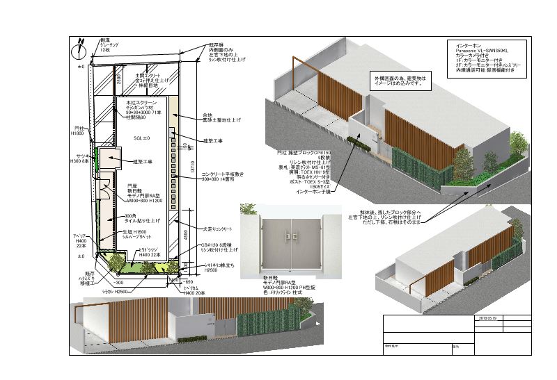
こんにちは。。。ほっと一息ってところです。
H様邸の外構工事のプランをひとだんらく終えたところです。
外回りにH3000の高さの木柱がズラリ!
こうしておくと建築にも
直射日光が当たらなくなり
、涼しくなりそうです。
太い柱なのですごい迫力で完成するでしょうね。
あと緑もたくさん入るしGoood
[0回]
PR
(有)宝ガーデン
|
takara Today!
Trackback()
Comment(0)
Comment
name
title
color
Black
LimeGreen
SeaGreen
Teal
FireBrick
Tomato
IndianRed
BurlyWood
SlateGray
DarkSlateBlue
LightPink
DeepPink
DarkOrange
Gold
DimGray
Silver
mail
URL
comment
pass
コメントの修正にはpasswordが必要です。任意の英数字を入力して下さい。
この記事へのトラックバック
この記事にトラックバックする:
<<
兵庫県ひろいっ
HOME
レンガ花壇!積んどりますっ
>>
カレンダー
01
2026/02
03
S
M
T
W
T
F
S
1
2
3
4
5
6
7
8
9
10
11
12
13
14
15
16
17
18
19
20
21
22
23
24
25
26
27
28
リンク
施工に行きました地図
書きたてのほやほや記事へGo!
takaragarden_facebook
宝ガーデンのホームページへ
宝ガーデンのfacebookページ
作者へメール
管理画面
新しい記事を書く
宝ガーデン on Facebook
段ボールと包装資材、梱包機器!
横浜市旭区の杉山先生の教室!
きむち屋 華さん。ネット販売あり、激うま。
@ガーデニング
ブログ内検索
キーワードを打込んで検索^^ 古記事を探すのに使って!
フリーエリア
押して下さい。一票投じてね。
カテゴリー
出先! ( 272 )
takara Today! ( 570 )
やるっきゃないね^^; ( 51 )
まったくもってプライベート ( 28 )
日だまり君シリーズ ( 5 )
アーカイブ
2025 年 07 月 ( 1 )
2025 年 04 月 ( 1 )
2025 年 01 月 ( 3 )
2024 年 10 月 ( 3 )
2022 年 12 月 ( 1 )
2020 年 10 月 ( 1 )
2019 年 07 月 ( 1 )
2018 年 10 月 ( 1 )
2018 年 08 月 ( 1 )
2018 年 07 月 ( 5 )
2017 年 06 月 ( 3 )
2017 年 04 月 ( 1 )
2017 年 02 月 ( 1 )
2017 年 01 月 ( 5 )
2016 年 12 月 ( 2 )
2016 年 10 月 ( 1 )
2016 年 09 月 ( 9 )
2016 年 08 月 ( 1 )
2016 年 05 月 ( 1 )
2016 年 02 月 ( 1 )
2016 年 01 月 ( 1 )
2015 年 12 月 ( 5 )
2015 年 11 月 ( 4 )
2015 年 10 月 ( 3 )
2015 年 09 月 ( 2 )
2015 年 04 月 ( 1 )
2015 年 02 月 ( 1 )
2014 年 09 月 ( 1 )
2014 年 06 月 ( 1 )
2014 年 05 月 ( 2 )
2014 年 04 月 ( 2 )
2014 年 02 月 ( 1 )
2014 年 01 月 ( 1 )
2013 年 12 月 ( 1 )
2013 年 11 月 ( 1 )
2013 年 09 月 ( 3 )
2013 年 08 月 ( 8 )
2013 年 07 月 ( 6 )
2013 年 06 月 ( 5 )
2013 年 05 月 ( 5 )
2013 年 04 月 ( 2 )
2013 年 03 月 ( 1 )
2013 年 02 月 ( 1 )
2013 年 01 月 ( 1 )
2012 年 12 月 ( 6 )
2012 年 11 月 ( 6 )
2012 年 10 月 ( 5 )
2012 年 09 月 ( 8 )
2012 年 08 月 ( 21 )
2012 年 07 月 ( 12 )
最新記事
とても暑いですね。そうめん流し
(07/11)
途中から雨
(04/28)
難しいのは一致団結。
(01/13)
例年は10日か11日
(01/10)
2025年えべっさん
(01/09)
雨、きたわー
(10/19)
涼しくなってまいりました。
(10/13)
カウンター
プロフィール
HN:
(有)宝ガーデン
HP:
宝ガーデンのHP
性別:
非公開
バーコード
携帯電話でも見れます!
RSS
RSS 0.91
RSS 1.0
RSS 2.0
Template by
Crow's nest
忍者ブログ
[PR]