外構工事、エクステリア、造園工事、ウッドデッキ、左官、舗装、吹き付け、家の外回りならなんなりと!宝塚市の宝ガーデンです^^
ん~、すこし頭脳が煮詰まってきた。。。
小野市のウッドデッキプランをしたり、その他提出物を送信&発送。。。
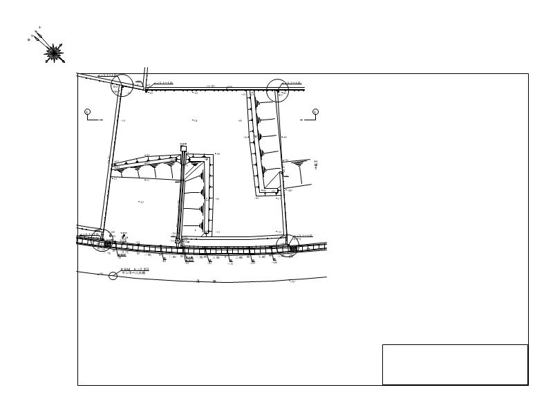
そして次に写真の物件、宝塚市、K様邸です。
こちらまだ提出までに猶予がありますが、その次のプラン、その次、その次がありますので、先に取り掛かっているわけです。
みなさま、ご用命いただきましてほんとうにありがとうございます。
こちら、小高い土地にある南向きの敷地。近くに広い公園があります。静かな、なんと言いましょうか、私も宝塚なのですが別世界。うらやましい。

ですが、ちょっと残念な事に、すでに造成された土地なのですが東側が途中までしか擁壁がされていない><;
なぜだっ!と言いたくなる。
これは高低差1m以下になる部分なので、造成屋さんが擁壁の必要がなくって割愛したとでも言いましょうか。
ほんと必要な部分だけ工事してそれ以外はしない。きっぱりとしていますナ。
それでもって東側の敷地内に緩やかな坂道が発生。あとはどんな建築が建とうがおかまいなし。
で、最後のエクステリア工事で費用が発生してしまいます。
施主様としては、土地を買い、家を買い、エクステリアを買う訳なのですが、土地を平たくする費用って、ほとんどの人は計算外。
それにお金がかかってしまうのって、僕が施主でも不愉快。だけど坂道が残ったままなのも、もっと不愉快。だからシブシブその部分に費用をかけざるを得ないっすね。
門周りのデザインや駐車場が美しく仕上がり、機能を持った例えばカーポートに費用が掛かるのは分かりますけど、土地を平たくする為のブロックや擁壁って、とくにこの東側の一部って、人目に付かない、言ってみれば東隣さんだけが見える所。
でしょ。エクステリアって、結局そう言う見えない部分からも費用が発生してしまいます。
私たちもその部分はサービスとは言えませんし、真正面からの出来栄えと金額が一致しない場合も多々あります。
あ、すみません、ダァ~っと書いてしまいました。では、作図に戻りますのでこれにて。
にしむら君、かわそえさん、ちょっとまた無理言いますけどよろしくお願いします。

小野市のウッドデッキプランをしたり、その他提出物を送信&発送。。。
そして次に写真の物件、宝塚市、K様邸です。
こちらまだ提出までに猶予がありますが、その次のプラン、その次、その次がありますので、先に取り掛かっているわけです。
みなさま、ご用命いただきましてほんとうにありがとうございます。
こちら、小高い土地にある南向きの敷地。近くに広い公園があります。静かな、なんと言いましょうか、私も宝塚なのですが別世界。うらやましい。
ですが、ちょっと残念な事に、すでに造成された土地なのですが東側が途中までしか擁壁がされていない><;
なぜだっ!と言いたくなる。
これは高低差1m以下になる部分なので、造成屋さんが擁壁の必要がなくって割愛したとでも言いましょうか。
ほんと必要な部分だけ工事してそれ以外はしない。きっぱりとしていますナ。
それでもって東側の敷地内に緩やかな坂道が発生。あとはどんな建築が建とうがおかまいなし。
で、最後のエクステリア工事で費用が発生してしまいます。
施主様としては、土地を買い、家を買い、エクステリアを買う訳なのですが、土地を平たくする費用って、ほとんどの人は計算外。
それにお金がかかってしまうのって、僕が施主でも不愉快。だけど坂道が残ったままなのも、もっと不愉快。だからシブシブその部分に費用をかけざるを得ないっすね。
門周りのデザインや駐車場が美しく仕上がり、機能を持った例えばカーポートに費用が掛かるのは分かりますけど、土地を平たくする為のブロックや擁壁って、とくにこの東側の一部って、人目に付かない、言ってみれば東隣さんだけが見える所。
でしょ。エクステリアって、結局そう言う見えない部分からも費用が発生してしまいます。
私たちもその部分はサービスとは言えませんし、真正面からの出来栄えと金額が一致しない場合も多々あります。
あ、すみません、ダァ~っと書いてしまいました。では、作図に戻りますのでこれにて。
にしむら君、かわそえさん、ちょっとまた無理言いますけどよろしくお願いします。
PR
Comment
コメントの修正にはpasswordが必要です。任意の英数字を入力して下さい。
