忍者ブログ
外構工事、エクステリア、造園工事、ウッドデッキ、左官、舗装、吹き付け、家の外回りならなんなりと!宝塚市の宝ガーデンです^^
[401]  [400]  [399]  [397]  [395]  [394]  [393]  [392]  [391]  [390]  [389
×

[PR]上記の広告は3ヶ月以上新規記事投稿のないブログに表示されています。新しい記事を書く事で広告が消えます。

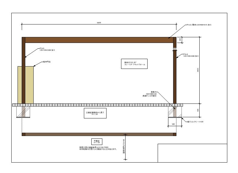
YKKAP さん、ありがとう!すごい。リレーリアってとてもロング!
Long~~

木柱でゲートを作るお話がきていまして、これが右から左までとても遠い。5m80cm
みつすけ君に聞いて、それだけ長い1本の柱が手に入るか聞いていた。
うん、これは何とか準備できそうだった。
だけど素材は米松。。。ん~ちょっと先々が心配。

痛んできて将来、たとえば10年後、突然真ん中からへし折れるとか。。。
20110216.JPG
図面ではこーんな感じ。

米松でするにしてはあまりにも長すぎ><;

そこで登場するのがリレーリアです。

これにてご採用いただければと思います。

blogram投票ボタン
住まいるブログランキング 住まいの総合情報サイト
人気ブログランキングへ にほんブログ村 住まいブログ エクステリア・ガーデンへ

拍手[2回]

PR
Comment
name 
title 
color 
mail 
URL
comment 
pass    Vodafone絵文字 i-mode絵文字 Ezweb絵文字
コメントの修正にはpasswordが必要です。任意の英数字を入力して下さい。
この記事へのトラックバック
この記事にトラックバックする:


カレンダー
09 2025/10 11
S M T W T F S
1 2 3 4
5 6 7 8 9 10 11
12 13 14 15 16 17 18
19 20 21 22 23 24 25
26 27 28 29 30 31
ブログ内検索
キーワードを打込んで検索^^ 古記事を探すのに使って!
フリーエリア

blogram投票ボタン
押して下さい。一票投じてね。

住まいるブログランキング 住まいの総合情報サイト
人気ブログランキングへ
ブログランキング・にほんブログ村へ
フィードメーター - 宝ガーデンのブログ!
カウンター
プロフィール
HN:
(有)宝ガーデン
性別:
非公開
バーコード
携帯電話でも見れます!
Template by Crow's nest 忍者ブログ [PR]