外構工事、エクステリア、造園工事、ウッドデッキ、左官、舗装、吹き付け、家の外回りならなんなりと!宝塚市の宝ガーデンです^^
土地って高いですもんね。
家を作るには土地が必要で。お料理を並べるのにお皿が必要なのと同じ。
せっかくのお料理もすてきなお皿がないと食べることはできない。
今回の施主様の土地はそのお皿がやや変形した感じ。
でもそれをできるだけ有意義に使っていただく工夫をするのも、これまたエクステリアの仕事。

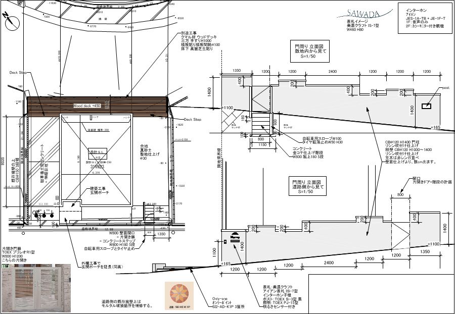
今回、接道している道路は斜面、そして裏庭は絶壁。
裏庭はこのままでは活用スペース、ゼロ。
でもできるだけ有意義に使っていただきたくウッドデッキを設置する予定。
出幅1500です。
これだけでも屋外の部屋が増えた感じがする。
そしてそのデッキの先には既存の植木たちの緑。
やった。これは施主様にとってとてもお得なスペースだと思いませんか。
気候の良い時にはここをご活用いただけることだと思います。材もクマル材を使いますのでとてもハード。
硬木です。
ぜひご愛用ください。
そしてみなさん、下のボタンを気が済むまで押してください。連打だ!

家を作るには土地が必要で。お料理を並べるのにお皿が必要なのと同じ。
せっかくのお料理もすてきなお皿がないと食べることはできない。
今回の施主様の土地はそのお皿がやや変形した感じ。
でもそれをできるだけ有意義に使っていただく工夫をするのも、これまたエクステリアの仕事。
今回、接道している道路は斜面、そして裏庭は絶壁。
裏庭はこのままでは活用スペース、ゼロ。
でもできるだけ有意義に使っていただきたくウッドデッキを設置する予定。
出幅1500です。
これだけでも屋外の部屋が増えた感じがする。
そしてそのデッキの先には既存の植木たちの緑。
やった。これは施主様にとってとてもお得なスペースだと思いませんか。
気候の良い時にはここをご活用いただけることだと思います。材もクマル材を使いますのでとてもハード。
硬木です。
ぜひご愛用ください。
そしてみなさん、下のボタンを気が済むまで押してください。連打だ!
PR
Comment
コメントの修正にはpasswordが必要です。任意の英数字を入力して下さい。
