外構工事、エクステリア、造園工事、ウッドデッキ、左官、舗装、吹き付け、家の外回りならなんなりと!宝塚市の宝ガーデンです^^
にしむら君、今日はそっち方面で以前取り付けた4枚折り戸の補修。
この明石大橋、とてつもなくでかいですね~。これを作ってしまうのですから日本の人たちってすごい!
高い柱からこのどでかい橋を吊っている訳でしょ。超一流の土木の達人たちが強度や構造の計算をして施工したんですよね。とてもすごい、まねできない。あたりまえだけど。
にしむら君の今日補修に行った現場は5年くらい前かな?施工させていただいたI様邸。扉を吊っている「ひじつぼ」と呼んでいる箇所の金具が破損したと言うもの。
毎日開け閉めを繰り返すうちに疲労したのでしょうか。。。
で、事務所サイドでは作図作図。
あー、そのうちあたらしいベクターワークスを手に入れようと思う。もっとスムーズに描けるのだろうなと思いつつ。。。
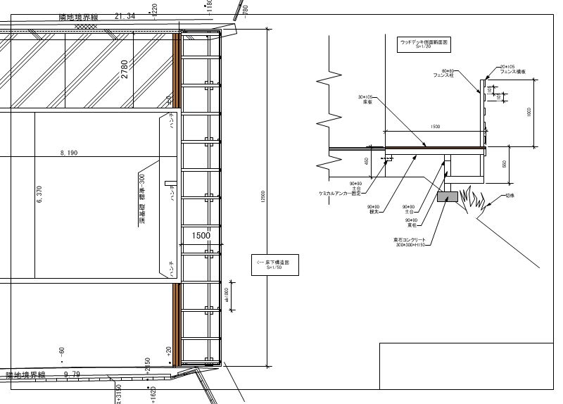
で、今日すすめていたのがウッドデッキの図面。
裏庭が崖っぷちになっているこちらの敷地にウッドデッキをするのですが、施主様へのご説明用と現場施工用と言うことで作図。
たかがこれだけの図面であーだ、こーだ悩むのですから明石大橋の設計ってどれほど大変だったのだろう。
自分の小ささに落ち込みます。
そうか、ベクターワークスのバージョンを新しくしたところで同じか^^;
PR
Comment
コメントの修正にはpasswordが必要です。任意の英数字を入力して下さい。
