外構工事、エクステリア、造園工事、ウッドデッキ、左官、舗装、吹き付け、家の外回りならなんなりと!宝塚市の宝ガーデンです^^
私が手配したデッキ材の本数に少々間違いがありまして急きょ再手配。
現場サイドごめんなさいね。
このごろこうゆうエラーが多い。きちっとやらなければと反省。きちんと準備しなければ><;

N様邸にてウッドデッキのスタート。
どうぞ天気が良くスムーズに進みますように。
完成しますとこちらのウッドデッキから緑が眺めれる状況。
新緑の季節ですしとても空気がおいしい。

傾斜地でしたので、言って見ればこういう床を作らないと、使えない部分の土地でした。
こうしてウッドデッキをさせていただく事で、その土地の利用価値が上がります。屋外のお部屋が一つ増えた感じです。
トホ、まだ出来上がっていませんが。
さてさて、明日からQ氏のチームで、芦屋市のA様邸スタート。

A様邸では、こーんなロートアイアンの手すりを取りつけます。
今、A社のやまもと君にかっこよく作ってもらえるように打診中。
この手すり、変っ??
いやいやそんな事はない!
完成したら見せてあげたい。
この内容で外構工事の工期は2週間ほど。
外のお仕事ですので、雨の日には無理はしない。
汚れるだけですし、仕上がりもぜんぜん悪くなってしまいますので、雨の日はお休みします。
こちらのA様邸、完成が楽しみ。どうぞロートアイアンの手摺に驚いてください。
きっと子供さんが手摺の柱と柱の間から、体をスルッっと抜け出すと思いますので、そこのところは服が引っかからないように考えました。
A様邸ファミリーのみなさんどうぞお楽しみに!
さてさて、ちょっと違う話。。。
私、とうとう成り行きで地元地域の"だんじり"の青年会の会長になりつつあります。
トホホ

ほんとになんやかんやと用事ができるもんですワ。
去年とその前の年、実はこの会の副会長をやっておりまして
なぜか今年も役員残留、って事になりまして。
だったら何度も同じ役職をするのは、なんだか意味ないじゃん、って思ったんです。そこで立候補。。。_| ̄|○
秋のお祭りなのですが、もう今から準備開始でございます。
やるからには一生懸命やるのですがネ。
だけどどうしても引っかかる部分があります。と言うのは東北地方であのような大きな災害がありました。
なのにお祭りってやってもいいものかなと。。。
阪神大震災の年は中止になりました。それで、今回はどうなのかなと。
一応準備は進めておきます。
そう、準備が命ですから。


現場サイドごめんなさいね。
このごろこうゆうエラーが多い。きちっとやらなければと反省。きちんと準備しなければ><;
N様邸にてウッドデッキのスタート。
どうぞ天気が良くスムーズに進みますように。
完成しますとこちらのウッドデッキから緑が眺めれる状況。
新緑の季節ですしとても空気がおいしい。
傾斜地でしたので、言って見ればこういう床を作らないと、使えない部分の土地でした。
こうしてウッドデッキをさせていただく事で、その土地の利用価値が上がります。屋外のお部屋が一つ増えた感じです。
トホ、まだ出来上がっていませんが。
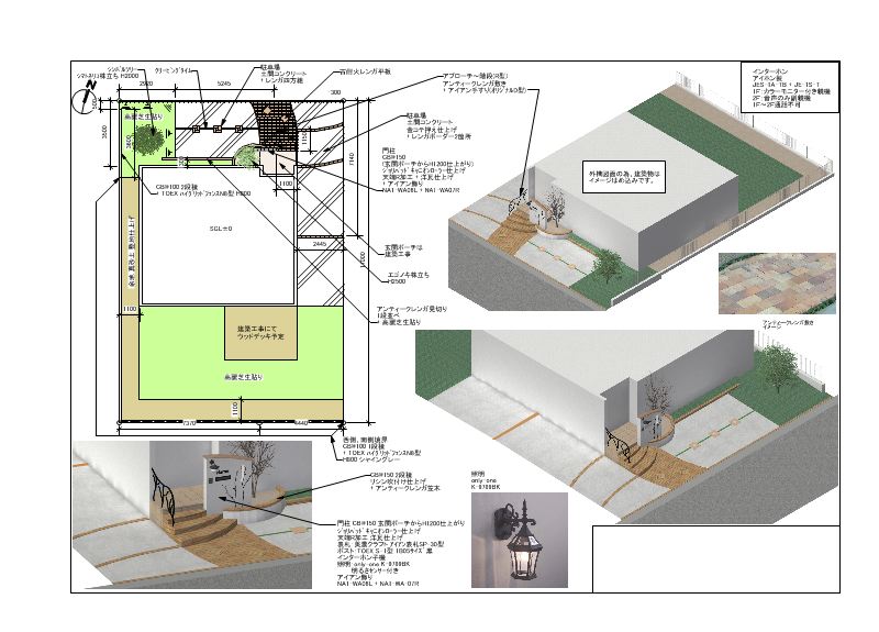
さてさて、明日からQ氏のチームで、芦屋市のA様邸スタート。
A様邸では、こーんなロートアイアンの手すりを取りつけます。
今、A社のやまもと君にかっこよく作ってもらえるように打診中。
この手すり、変っ??
いやいやそんな事はない!
完成したら見せてあげたい。
この内容で外構工事の工期は2週間ほど。
外のお仕事ですので、雨の日には無理はしない。
汚れるだけですし、仕上がりもぜんぜん悪くなってしまいますので、雨の日はお休みします。
こちらのA様邸、完成が楽しみ。どうぞロートアイアンの手摺に驚いてください。
きっと子供さんが手摺の柱と柱の間から、体をスルッっと抜け出すと思いますので、そこのところは服が引っかからないように考えました。
A様邸ファミリーのみなさんどうぞお楽しみに!
さてさて、ちょっと違う話。。。
私、とうとう成り行きで地元地域の"だんじり"の青年会の会長になりつつあります。
トホホ
ほんとになんやかんやと用事ができるもんですワ。
去年とその前の年、実はこの会の副会長をやっておりまして
なぜか今年も役員残留、って事になりまして。
だったら何度も同じ役職をするのは、なんだか意味ないじゃん、って思ったんです。そこで立候補。。。_| ̄|○
秋のお祭りなのですが、もう今から準備開始でございます。
やるからには一生懸命やるのですがネ。
だけどどうしても引っかかる部分があります。と言うのは東北地方であのような大きな災害がありました。
なのにお祭りってやってもいいものかなと。。。
阪神大震災の年は中止になりました。それで、今回はどうなのかなと。
一応準備は進めておきます。
そう、準備が命ですから。

PR
Comment
コメントの修正にはpasswordが必要です。任意の英数字を入力して下さい。
