外構工事、エクステリア、造園工事、ウッドデッキ、左官、舗装、吹き付け、家の外回りならなんなりと!宝塚市の宝ガーデンです^^
週明けから雨かー。
おはようございます。
元気出して行きましょう。
って、今日、行う2現場、完全に中止。。。
H様邸の鉄骨基礎工事、W様邸の件、どちらも明日への順延。
んー、手痛い><;
しかたないですね。
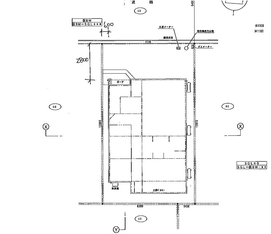
さて、そんな日はデスクワーク。ご新規でいただきましたエクステリアプランニングの件。

川西市久代にて。
H様邸外構工事です。
これはFAXでいただいた内容。
これとその他にいただいた資料にて
作図を開始いたします。
それやってから、他の雑用をこの雨のうちに
済ませてしまいます。
あー、マイベストプロ神戸のコラムも停滞したままだ。
先週、実は神戸新聞本社へお伺いしてきまして、そのコラムの書き方について個別相談会、行ってきました。
勉強になりましたよ。よく、整理して内容を考えてそちらも書いて行きます。うう、でもなかなか時間がない。
応援よろしくお願いいたします。下のボタンを見てしまったら、どれか押してください。

"宝ガーデンへメール"
おはようございます。
元気出して行きましょう。
って、今日、行う2現場、完全に中止。。。
H様邸の鉄骨基礎工事、W様邸の件、どちらも明日への順延。
んー、手痛い><;
しかたないですね。
さて、そんな日はデスクワーク。ご新規でいただきましたエクステリアプランニングの件。
川西市久代にて。
H様邸外構工事です。
これはFAXでいただいた内容。
これとその他にいただいた資料にて
作図を開始いたします。
それやってから、他の雑用をこの雨のうちに
済ませてしまいます。
あー、マイベストプロ神戸のコラムも停滞したままだ。
先週、実は神戸新聞本社へお伺いしてきまして、そのコラムの書き方について個別相談会、行ってきました。
勉強になりましたよ。よく、整理して内容を考えてそちらも書いて行きます。うう、でもなかなか時間がない。
応援よろしくお願いいたします。下のボタンを見てしまったら、どれか押してください。
"宝ガーデンへメール"
PR
Comment
コメントの修正にはpasswordが必要です。任意の英数字を入力して下さい。
