外構工事、エクステリア、造園工事、ウッドデッキ、左官、舗装、吹き付け、家の外回りならなんなりと!宝塚市の宝ガーデンです^^
おはようございます。
くもり、時々小雨の感じです。
今日は2つのお宅へ、植木の剪定作業に伺っております。
宝塚市売布、そして箕面ですね。
植木は生き物ですから、どんな植物でも成長します。
ぼうぼうに茂り過ぎた植木は剪定作業をしましてさっぱりとさせます。
ほったらかしにしておきますと、どうしても害虫の温床になりがちなので
日差しを良くして、さっぱりしておく事が大事かもしれません。
宝ガーデンでは、そう言ったお庭の管理作業も承ります。
で、芦屋市では、本日、掘削作業中。擁壁と言いましてコンクリートの壁面を作るための基礎工事中です。
ユンボでがさーっと掘削いたしまして、その基礎部分に着手しているところです。
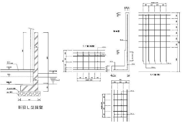
このね、一見なにを示しているのか分からない図面です。
これを現場で見ながら
鉄筋の配置を確かめたりして進める訳です。
で、現場にて格闘しているかわそえさんです。
ご苦労様です。
どうしても、掘削工事などはホコリがたってしまいます。
ご近隣への配慮もありがとう。

"宝ガーデンへメール"
くもり、時々小雨の感じです。
今日は2つのお宅へ、植木の剪定作業に伺っております。
宝塚市売布、そして箕面ですね。
植木は生き物ですから、どんな植物でも成長します。
ぼうぼうに茂り過ぎた植木は剪定作業をしましてさっぱりとさせます。
ほったらかしにしておきますと、どうしても害虫の温床になりがちなので
日差しを良くして、さっぱりしておく事が大事かもしれません。
宝ガーデンでは、そう言ったお庭の管理作業も承ります。
で、芦屋市では、本日、掘削作業中。擁壁と言いましてコンクリートの壁面を作るための基礎工事中です。
ユンボでがさーっと掘削いたしまして、その基礎部分に着手しているところです。
このね、一見なにを示しているのか分からない図面です。
これを現場で見ながら
鉄筋の配置を確かめたりして進める訳です。
で、現場にて格闘しているかわそえさんです。
ご苦労様です。
どうしても、掘削工事などはホコリがたってしまいます。
ご近隣への配慮もありがとう。
"宝ガーデンへメール"
PR
Comment
コメントの修正にはpasswordが必要です。任意の英数字を入力して下さい。
