外構工事、エクステリア、造園工事、ウッドデッキ、左官、舗装、吹き付け、家の外回りならなんなりと!宝塚市の宝ガーデンです^^
こんばんは。
どーっと言う雨が過ぎ去って行きました。
今日は雨でしたので芦屋の現場はあえなくストップ。
ま、そんな中、下坂は兵庫をさまよう。
午前中は神戸市北区S様邸へ^^。
こうして、建築物がおおよそ完成してきましたら
いよいよ私たちの出番。
今日は、外構工事の最終確認。
施主様へ図面をみながら部分ごとにご説明。
あと、フェンスの色を最終的に決めていただいたり
肝心な表札についていろいろトーク。
書体をどれにしようか、などご相談させていただきました。オリジナルな1個物の表札を作成いたしますので。
で、その後、さっそうと最新型自動車に乗りまして
たつの市新宮町へ伺いました。
こちらのそろそろエクステリア工事の始まり直前でした。
状況確認と現場から担当者への連絡で詳細を決めてきました。
んー、どちらの現場もエクステリアが完成する前ですので
当然、石がごろごろしていたり、やっぱりこれを見ると
エクステリアの必要性を感じずにはおれませんね。
ご新築をご計画の方は、どうぞ建築物と同時進行で
エクステリアの事を検討されてください。
で、雨で増水する揖保川を横目に宝塚へ帰ってきました。
そして、新たなプランをねる訳です。
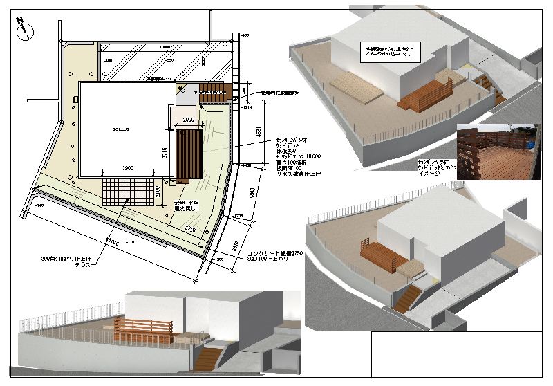
神戸市垂水区舞多門、K様邸。こちら中身の濃い内容となりました。
図面的にはこんな感じ。

セランガンバツ材のウッドデッキあり
駐車場、擁壁工事
階段、もちろん。
タイル貼りテラス。
背の高めの擁壁があります。
これをしない事には、広いお庭をフラットにして使っていただけない。。。
傾斜地になっていますので、擁壁を立ち上げてお庭を平らにする訳です。
これで、子供さんも安心してお庭であそんでいただけます!
どうかこの内容でご検討いただきまして、ご契約いただけますとありがたいです。
ざーっと今日の事を走り書きしました。
今日一番思ったのは、揖保川、美しいのでしょうけど、大雨の時はこわいっ!
以上です。すみません、みなさん、下のボタンをかたっぱしからクリックしていただき
熱い応援をよろしくお願いします。最近ランキング下がったがなっ!fecebookにうつつを抜かしているうちに;;


"宝ガーデンへメール"
どーっと言う雨が過ぎ去って行きました。
今日は雨でしたので芦屋の現場はあえなくストップ。
ま、そんな中、下坂は兵庫をさまよう。
午前中は神戸市北区S様邸へ^^。
こうして、建築物がおおよそ完成してきましたら
いよいよ私たちの出番。
今日は、外構工事の最終確認。
施主様へ図面をみながら部分ごとにご説明。
あと、フェンスの色を最終的に決めていただいたり
肝心な表札についていろいろトーク。
書体をどれにしようか、などご相談させていただきました。オリジナルな1個物の表札を作成いたしますので。
で、その後、さっそうと最新型自動車に乗りまして
たつの市新宮町へ伺いました。
こちらのそろそろエクステリア工事の始まり直前でした。
状況確認と現場から担当者への連絡で詳細を決めてきました。
んー、どちらの現場もエクステリアが完成する前ですので
当然、石がごろごろしていたり、やっぱりこれを見ると
エクステリアの必要性を感じずにはおれませんね。
ご新築をご計画の方は、どうぞ建築物と同時進行で
エクステリアの事を検討されてください。
で、雨で増水する揖保川を横目に宝塚へ帰ってきました。
そして、新たなプランをねる訳です。
神戸市垂水区舞多門、K様邸。こちら中身の濃い内容となりました。
図面的にはこんな感じ。
セランガンバツ材のウッドデッキあり
駐車場、擁壁工事
階段、もちろん。
タイル貼りテラス。
背の高めの擁壁があります。
これをしない事には、広いお庭をフラットにして使っていただけない。。。
傾斜地になっていますので、擁壁を立ち上げてお庭を平らにする訳です。
これで、子供さんも安心してお庭であそんでいただけます!
どうかこの内容でご検討いただきまして、ご契約いただけますとありがたいです。
ざーっと今日の事を走り書きしました。
今日一番思ったのは、揖保川、美しいのでしょうけど、大雨の時はこわいっ!
以上です。すみません、みなさん、下のボタンをかたっぱしからクリックしていただき
熱い応援をよろしくお願いします。最近ランキング下がったがなっ!fecebookにうつつを抜かしているうちに;;
"宝ガーデンへメール"
PR
Comment
コメントの修正にはpasswordが必要です。任意の英数字を入力して下さい。
