外構工事、エクステリア、造園工事、ウッドデッキ、左官、舗装、吹き付け、家の外回りならなんなりと!宝塚市の宝ガーデンです^^
こんにちは。
さっき、どーっと雨が降りました。久しぶりに。
植木たちが元気になりますので良かったです。まさに天の恵み。
そんな中、本日は芦屋市にてH様邸の着工。私にとっては本当にうれしい事です。

何度か図面の書き換えを行いましたし、
施主様をガーデンショップにご案内して
今回植え付けを行う植木を選ばせていただきました。
あの日はとても暑くて、そんな中、ご同行していただきありがとうございました。
その物件が本日着工ですので、なんと言いますかうれしいところです。
まずは位置出しから。
着工初日は、図面に基づいて高さをチェックしたり
どこからブロックを積むとか
どこに門柱がくるとか
そう言った位置関係を間違えないように、現場に位置を出して行きます。
写真の奥の好青年がうえむら君です。いつもごくろうさんです。かなりのムキムキマンです。
ただ、髪型は無く、剃っています。私からも好感がもてます。ナイス!
雨は大丈夫だったでしょうか。それだけが心配。
さて、事務所サイドですが、ここのところ昼夜問わず、ずーっとCADリングの日々。
おかげでゴッツイ肩がこってしまいまして、昨日は湿布を肩に貼って寝ました。
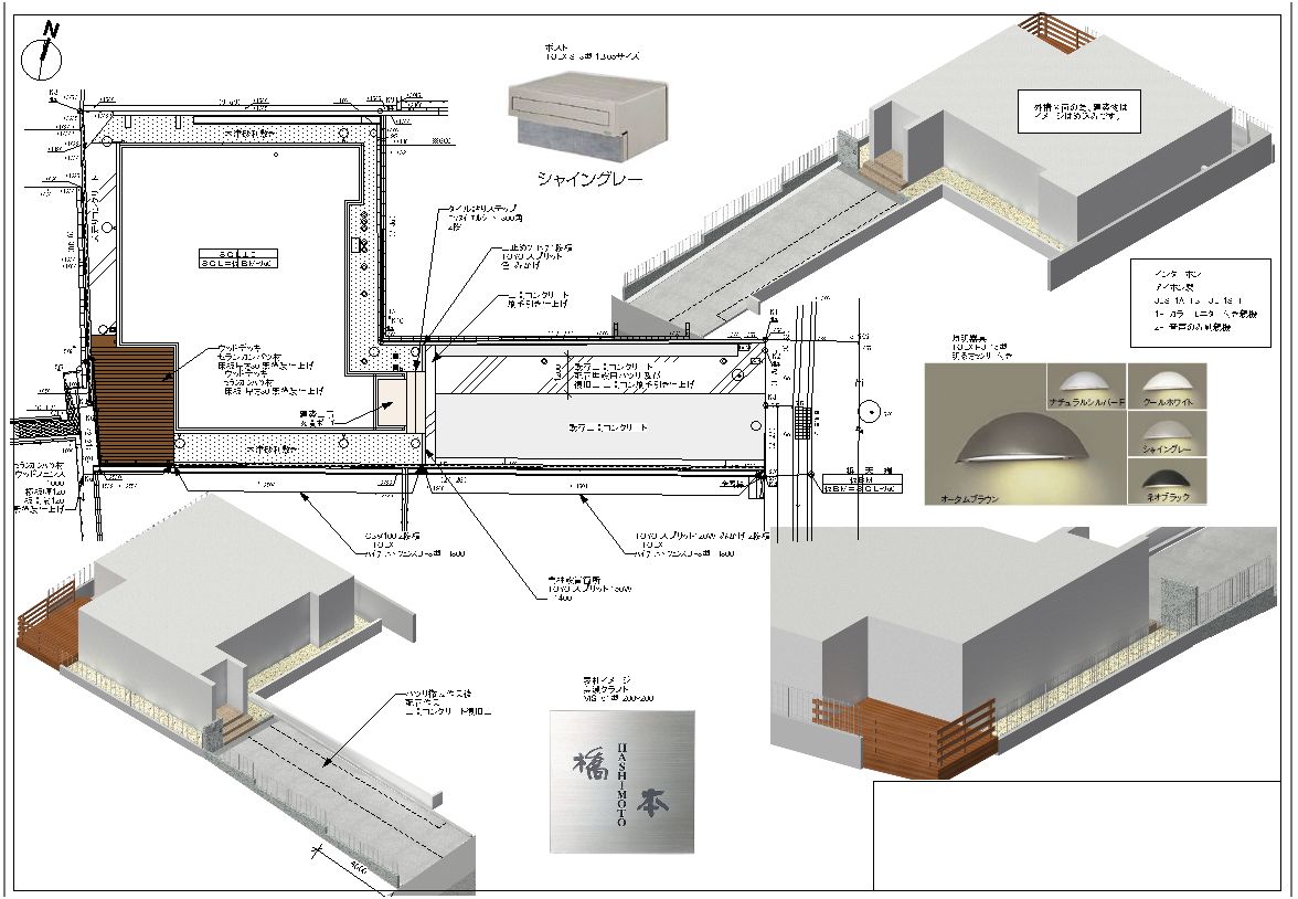
で、手がけている図面ですが、先ほど提出した図面は神戸市東灘区のM様邸。
長手の駐車場と奥にウッドデッキ!

セランガンバツ材と言うハードウッドの仲間の材を使い
長年ご愛用いただけるウッドデッキと
ウッドフェンスをご提案させていただきました。
ちょっと希望を言わせていただいたら植木を少し植えたかった。。。
だが、まずは初期提案段階と言う事で、この内容としております。
今現在の現場状況。。。
こーんな感じ。
まさに雑草がぼうぼう。
土地って、建築前はどこでもこうなっていますね。

まさに、こんな感じですわ。
建築のプランニングと同時進行で、エクステリアのプランも進めております。
とても大事な事なんですよね。
家ができあがってからあわてても、ちょっと遅いです。
ですので、宝ガーデンでは、可能な限り、建築と同時にプランをさせていただきながら、施主様との会話を進めております。
それが、家が完成した時の、中だけではなく、外廻りも含めて、納得のいく完成に繋がって行きます。
そう言ったことで、この頃、facebookのページを使い、いろんなご提案内容を配信中です。
施工例写真150枚以上、プランニングの図面集90件以上の画像をどーんと掲載中です。
ぜひご覧になってください。宝ガーデンのfacebookページ は、こちらのリンクからです。
さて、ちょっとコーヒーでも飲んで休憩。
午後の部、たくさんの見積依頼をいただいております。それに向けてガンバロー。
下のボタンを押して応援をお願いいたします!


"宝ガーデンへメール"
さっき、どーっと雨が降りました。久しぶりに。
植木たちが元気になりますので良かったです。まさに天の恵み。
そんな中、本日は芦屋市にてH様邸の着工。私にとっては本当にうれしい事です。
何度か図面の書き換えを行いましたし、
施主様をガーデンショップにご案内して
今回植え付けを行う植木を選ばせていただきました。
あの日はとても暑くて、そんな中、ご同行していただきありがとうございました。
その物件が本日着工ですので、なんと言いますかうれしいところです。
まずは位置出しから。
着工初日は、図面に基づいて高さをチェックしたり
どこからブロックを積むとか
どこに門柱がくるとか
そう言った位置関係を間違えないように、現場に位置を出して行きます。
写真の奥の好青年がうえむら君です。いつもごくろうさんです。かなりのムキムキマンです。
ただ、髪型は無く、剃っています。私からも好感がもてます。ナイス!
雨は大丈夫だったでしょうか。それだけが心配。
さて、事務所サイドですが、ここのところ昼夜問わず、ずーっとCADリングの日々。
おかげでゴッツイ肩がこってしまいまして、昨日は湿布を肩に貼って寝ました。
で、手がけている図面ですが、先ほど提出した図面は神戸市東灘区のM様邸。
長手の駐車場と奥にウッドデッキ!
セランガンバツ材と言うハードウッドの仲間の材を使い
長年ご愛用いただけるウッドデッキと
ウッドフェンスをご提案させていただきました。
ちょっと希望を言わせていただいたら植木を少し植えたかった。。。
だが、まずは初期提案段階と言う事で、この内容としております。
今現在の現場状況。。。
こーんな感じ。
まさに雑草がぼうぼう。
土地って、建築前はどこでもこうなっていますね。
まさに、こんな感じですわ。
建築のプランニングと同時進行で、エクステリアのプランも進めております。
とても大事な事なんですよね。
家ができあがってからあわてても、ちょっと遅いです。
ですので、宝ガーデンでは、可能な限り、建築と同時にプランをさせていただきながら、施主様との会話を進めております。
それが、家が完成した時の、中だけではなく、外廻りも含めて、納得のいく完成に繋がって行きます。
そう言ったことで、この頃、facebookのページを使い、いろんなご提案内容を配信中です。
施工例写真150枚以上、プランニングの図面集90件以上の画像をどーんと掲載中です。
ぜひご覧になってください。宝ガーデンのfacebookページ は、こちらのリンクからです。
さて、ちょっとコーヒーでも飲んで休憩。
午後の部、たくさんの見積依頼をいただいております。それに向けてガンバロー。
下のボタンを押して応援をお願いいたします!
"宝ガーデンへメール"
PR
Comment
コメントの修正にはpasswordが必要です。任意の英数字を入力して下さい。
