外構工事、エクステリア、造園工事、ウッドデッキ、左官、舗装、吹き付け、家の外回りならなんなりと!宝塚市の宝ガーデンです^^
おはようございます。
んー、夜通しプランを考え続けておりました。悩みつつ。
なんの悩み?
あ、例えばあなたがスーパーマーケットの1階で
買物カゴをもって、それをキャリーに乗せて
お買い物中。。。食材を買物カゴに次々と入れて行く。
でも、そのカゴの中身。。。ぜったいに3割は野菜を買わなければいけなかったら?
お肉、お魚、お菓子、などなど、いろいろ買い込みますが、
カゴの中身のうち30%はぜったい野菜にしなければならないルールがあったら?
野菜好きの方にはいいかもしれませんが、そうではない人も大勢おられます。
だけど野菜は必要で、30%とは言わないけど、少しだけサラダを買っておこうとか
ま、そこのところ、各家庭、各食卓の自由と言いましょうか。
ですが、建築物を建てるには、風致地区のルールと言うのがある場合があります。
今回のお客様の土地、第3種風致地区に該当しています。
風致地区とは、その街の景観を損なわないように、
敷地面積に対して決まった法則を満たした内容の植栽計画をしなさいと言う物。
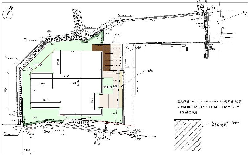
今回は敷地面積197.6平米の土地で、そのうち30%を緑化しなくてはならない。
ですから 197.6 * 30% ですので 60平米の緑地面積が必要と言う事です。
197.6の広さの買物カゴがあったなら、そのうち60の部分は野菜にしなさい!と言うルールです。
60平米と言いましたら乗用車の駐車場が3台分確保できる面積です。
この緑地面積 30%というのはちょっと割合が高すぎるように思いませんか。
下の写真をご覧ください。

こういう形の土地です。
以前、こちらに建築物があったと思います。
それがすでに解体されておりました。
そこへ家の建築計画がありまして
余地を利用して緑化するわけなのですが、どうしても
あと14平米ほど、緑地面積が足りない。
この場合、以前から駐車場として使われていたであろう、
既存の土間コンクリートをつぶして、緑の駐車場とするか
建築物の計画を変更して、家を小さくするか。

明日にでも担当者と話をつめてみますが
どちらにしても、この緑地面積30%と言うのは守る必要がある訳です。
でもその30%と言う割合が、とほうもなく大きいような気がします。
施主の立場になって考えてみると
そりゃまったく植木は無しとなりますと、見栄えも良くないし
ある程度は、植木も植えてあげて緑化はしたい所ですが
土地の中に緑化率を30%と言われると、家を立てて、それ以外の部分のほとんどが緑化と言う風に思えます。
そして、そして、さらに、この緑地面積60平米に対して、高木、高さ3m50の樹木を6本と
中木、高さ1m50の樹木を12本、必ず植えなくてはなりません。
いきなり18本の植木を植えなさいと言う事です。
ちょーっと行きすぎとちゃいまっか?と聞いてみたい。
風致の条例は地域ごとにいろいろです。
でも、とても大きな買物である、建築物の新築という買物をするにあたり
ジャングルにでもする気か?と言う勢いのこの条例ってどうかと思いますよ。
買物カゴの中はあるていどバランス良くだと思いますね。
カゴの中の30%を野菜にして、さらに背の高いネギやだいこんを6本、
背が真ん中ぐらいのなんだろ、そう言う野菜を12個は買わないと
レジを通さないってことなんですよね。
ある程度、ルールでだいじだけど。。。ま、そんな事でつまづいておりました。トホホ
ま、緑化は必要ですけどね。
下のボタンを押して応援お願いします。


"宝ガーデンへメール"
んー、夜通しプランを考え続けておりました。悩みつつ。
なんの悩み?
あ、例えばあなたがスーパーマーケットの1階で
買物カゴをもって、それをキャリーに乗せて
お買い物中。。。食材を買物カゴに次々と入れて行く。
でも、そのカゴの中身。。。ぜったいに3割は野菜を買わなければいけなかったら?
お肉、お魚、お菓子、などなど、いろいろ買い込みますが、
カゴの中身のうち30%はぜったい野菜にしなければならないルールがあったら?
野菜好きの方にはいいかもしれませんが、そうではない人も大勢おられます。
だけど野菜は必要で、30%とは言わないけど、少しだけサラダを買っておこうとか
ま、そこのところ、各家庭、各食卓の自由と言いましょうか。
ですが、建築物を建てるには、風致地区のルールと言うのがある場合があります。
今回のお客様の土地、第3種風致地区に該当しています。
風致地区とは、その街の景観を損なわないように、
敷地面積に対して決まった法則を満たした内容の植栽計画をしなさいと言う物。
今回は敷地面積197.6平米の土地で、そのうち30%を緑化しなくてはならない。
ですから 197.6 * 30% ですので 60平米の緑地面積が必要と言う事です。
197.6の広さの買物カゴがあったなら、そのうち60の部分は野菜にしなさい!と言うルールです。
60平米と言いましたら乗用車の駐車場が3台分確保できる面積です。
この緑地面積 30%というのはちょっと割合が高すぎるように思いませんか。
下の写真をご覧ください。
こういう形の土地です。
以前、こちらに建築物があったと思います。
それがすでに解体されておりました。
そこへ家の建築計画がありまして
余地を利用して緑化するわけなのですが、どうしても
あと14平米ほど、緑地面積が足りない。
この場合、以前から駐車場として使われていたであろう、
既存の土間コンクリートをつぶして、緑の駐車場とするか
建築物の計画を変更して、家を小さくするか。
明日にでも担当者と話をつめてみますが
どちらにしても、この緑地面積30%と言うのは守る必要がある訳です。
でもその30%と言う割合が、とほうもなく大きいような気がします。
施主の立場になって考えてみると
そりゃまったく植木は無しとなりますと、見栄えも良くないし
ある程度は、植木も植えてあげて緑化はしたい所ですが
土地の中に緑化率を30%と言われると、家を立てて、それ以外の部分のほとんどが緑化と言う風に思えます。
そして、そして、さらに、この緑地面積60平米に対して、高木、高さ3m50の樹木を6本と
中木、高さ1m50の樹木を12本、必ず植えなくてはなりません。
いきなり18本の植木を植えなさいと言う事です。
ちょーっと行きすぎとちゃいまっか?と聞いてみたい。
風致の条例は地域ごとにいろいろです。
でも、とても大きな買物である、建築物の新築という買物をするにあたり
ジャングルにでもする気か?と言う勢いのこの条例ってどうかと思いますよ。
買物カゴの中はあるていどバランス良くだと思いますね。
カゴの中の30%を野菜にして、さらに背の高いネギやだいこんを6本、
背が真ん中ぐらいのなんだろ、そう言う野菜を12個は買わないと
レジを通さないってことなんですよね。
ある程度、ルールでだいじだけど。。。ま、そんな事でつまづいておりました。トホホ
ま、緑化は必要ですけどね。
下のボタンを押して応援お願いします。
"宝ガーデンへメール"
PR
