外構工事、エクステリア、造園工事、ウッドデッキ、左官、舗装、吹き付け、家の外回りならなんなりと!宝塚市の宝ガーデンです^^
少しだけの修正をさせていただきました。
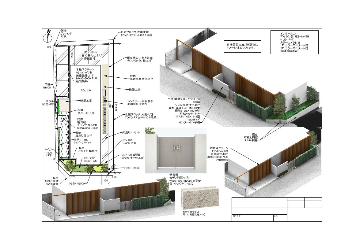
A様邸。

修正点は境界ブロック。
これ大事。どちらの敷地のブロックかってこと。
建築する上で自分の敷地を示すのに地面にポイントが打たれています。
なくなってしまっている場合もありますが、ま、それが境界線を示します。
おとなりさんとの境界線を示すのに、自分の敷地を示すのにブロックを積んだりフェンスを貼ったりしますが、通常、地盤の高い方の敷地の人が自分の敷地内にブロック、擁壁、コンクリート塀を建てるようです。
今回、ほぼ真っ平らなのですが、どうもお隣さんが境界ブロックを工事してくださると言うことですので、その部分を修正いたしました。
細かいことなのですが、とっても大事なことでお隣さん同士、もめごとのないように図面にも示した訳です。
ホゥ、どれでもいいから押してくださいマセ;; ↓↓↓

にほんブログ村
A様邸。
修正点は境界ブロック。
これ大事。どちらの敷地のブロックかってこと。
建築する上で自分の敷地を示すのに地面にポイントが打たれています。
なくなってしまっている場合もありますが、ま、それが境界線を示します。
おとなりさんとの境界線を示すのに、自分の敷地を示すのにブロックを積んだりフェンスを貼ったりしますが、通常、地盤の高い方の敷地の人が自分の敷地内にブロック、擁壁、コンクリート塀を建てるようです。
今回、ほぼ真っ平らなのですが、どうもお隣さんが境界ブロックを工事してくださると言うことですので、その部分を修正いたしました。
細かいことなのですが、とっても大事なことでお隣さん同士、もめごとのないように図面にも示した訳です。
ホゥ、どれでもいいから押してくださいマセ;; ↓↓↓
にほんブログ村
PR
ほんとお疲れ様です。
快晴!暑かったッスね。湿度もしっとりと。。。
写真はベテランU氏です。。。
今日はそんな天気の中、2台分の土間コンクリート。。。
駐車場を金コテ押さえ中です。
奥から仕上げてきてます。
こんな感じで金コテ押さえ仕上げ作業中!
ジュースを差し入れしました。アクエリアスとポカリ。
真ん中のまっすぐな道はタイル貼りです。建築の外壁に合ったタイル貼りの通路。鮮やか!
道路側には、型枠。この形でコンクリートを固めて、枠を外したあと、グレーチングと言うみぞのフタを置く訳です。
みぞ掃除するときに外すアレです。
こんな感じで押さえ中!
薄手の仕上げコテ!
しなります。

で、こんな感じ!
細く白い棒が真ん中に見えますが、これ伸縮目地。
できあがってから表面の白いテープをはがします。
将来的に床のコンクリートが割れてこないよう予防線みたいなもんです。
クッション材ですね。
門柱まわり。こんな感じで今、下地が仕上がっている段階!
これに向けて「ブォー!」っと吹き付けします。
ジョリパッドの吹き付け!
それをすると白く鮮やかな門柱の姿になります。
もすぐ完成だ!楽しみ。

右端にスリットが3か所。
後は、熟練左官のU氏の金コテさばきをyoutubeにて!
のちほど公開!

にほんブログ村
快晴!暑かったッスね。湿度もしっとりと。。。
写真はベテランU氏です。。。
今日はそんな天気の中、2台分の土間コンクリート。。。
駐車場を金コテ押さえ中です。
奥から仕上げてきてます。
ジュースを差し入れしました。アクエリアスとポカリ。
真ん中のまっすぐな道はタイル貼りです。建築の外壁に合ったタイル貼りの通路。鮮やか!
道路側には、型枠。この形でコンクリートを固めて、枠を外したあと、グレーチングと言うみぞのフタを置く訳です。
みぞ掃除するときに外すアレです。
こんな感じで押さえ中!
薄手の仕上げコテ!
しなります。
で、こんな感じ!
細く白い棒が真ん中に見えますが、これ伸縮目地。
できあがってから表面の白いテープをはがします。
将来的に床のコンクリートが割れてこないよう予防線みたいなもんです。
クッション材ですね。
門柱まわり。こんな感じで今、下地が仕上がっている段階!
これに向けて「ブォー!」っと吹き付けします。
ジョリパッドの吹き付け!
それをすると白く鮮やかな門柱の姿になります。
もすぐ完成だ!楽しみ。
右端にスリットが3か所。
後は、熟練左官のU氏の金コテさばきをyoutubeにて!
のちほど公開!
にほんブログ村
