外構工事、エクステリア、造園工事、ウッドデッキ、左官、舗装、吹き付け、家の外回りならなんなりと!宝塚市の宝ガーデンです^^
こんばんは。12時だな。
気が付いたらこの時間になっておりました。
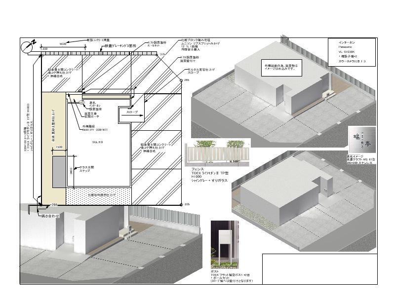
さて、エクステリアプランを大至急に進めさせていただきまして

こちらはM様邸なのですが
明日、打ち合わせがありまして
必要書類と言う事になります。
ただ、反映していない内容がひとつ。
タイルをご希望されている箇所がタイルになっていない。。。
んー、そうか;;
明日の、打ち合わせの話を聞きまして、さらに変更事項をお聞きして同時に修正させていただきます。
で、もうひとつが

こちらもM様邸。
広い敷地にでかい門扉です。
TOEXのエルハーブと言う名前の門扉。
色がこの色しかないんですよね。
こちらを最初から施主様が指定されていまして
ですから、エルハーブが入ってもおかしくない廻りのスタイルにさせていただきました。
さて、これをメールにて提出させていただき、いかなるご意見が出るかと言ったところです。
明日は、これまた大忙し。明日と言うか今日ですが
朝から伊丹市で門柱の解体工事、で、そこからすっ飛んで行って姫路で2件分の打ち合わせ。。。
で、またすっ飛んで帰ってきて事務所で作図と工程表の作成。
で夜、芦屋へ行ってリフォーム工事の打ち合わせ。
アヒャ~。。。
リニアモーターカーを個人的にくれっ!
応援よろしくお願いします。

"宝ガーデンへメール"
気が付いたらこの時間になっておりました。
さて、エクステリアプランを大至急に進めさせていただきまして
こちらはM様邸なのですが
明日、打ち合わせがありまして
必要書類と言う事になります。
ただ、反映していない内容がひとつ。
タイルをご希望されている箇所がタイルになっていない。。。
んー、そうか;;
明日の、打ち合わせの話を聞きまして、さらに変更事項をお聞きして同時に修正させていただきます。
で、もうひとつが
こちらもM様邸。
広い敷地にでかい門扉です。
TOEXのエルハーブと言う名前の門扉。
色がこの色しかないんですよね。
こちらを最初から施主様が指定されていまして
ですから、エルハーブが入ってもおかしくない廻りのスタイルにさせていただきました。
さて、これをメールにて提出させていただき、いかなるご意見が出るかと言ったところです。
明日は、これまた大忙し。明日と言うか今日ですが
朝から伊丹市で門柱の解体工事、で、そこからすっ飛んで行って姫路で2件分の打ち合わせ。。。
で、またすっ飛んで帰ってきて事務所で作図と工程表の作成。
で夜、芦屋へ行ってリフォーム工事の打ち合わせ。
アヒャ~。。。
リニアモーターカーを個人的にくれっ!
応援よろしくお願いします。
"宝ガーデンへメール"
PR
Comment
コメントの修正にはpasswordが必要です。任意の英数字を入力して下さい。
