外構工事、エクステリア、造園工事、ウッドデッキ、左官、舗装、吹き付け、家の外回りならなんなりと!宝塚市の宝ガーデンです^^
CADソフト、値段が高っ!40万円とかって値段ですよ。並みのパソコン本体が2台買えまっせ。
フリーソフトで手に入るCADソフトもありますが、私は長年使ってきましたVectorWorks(ベクターワークス)を愛用している訳です。で、うちのスタッフが最新版を手に入れようとしていまして、金額を見てみるとそーいう値段だったんです。そういえば今、使っているのを入手したときもそんな勢いの値段でした。
ベクターワークスはとっても使いやすく、3Dで立体パースを描くにはとってもよろしいです。平面図を書きまして、それに高さを与えて行き全部に高さを与え終わると斜めから見た角度にもって行き、レンダリング。。。レンダリングって立体に色や模様を付けて、斜めから見た場合に影の計算もした形での画像作りを言います。
そのレンダリングをする時に肝心なのがパソコンに入っているグラフィックカードというパーツ。
いいグラフィックカードだとそれだけで10万円ほどしてしまいます。ですが、これを使うと3Dの図面がマウスでくるくると向きを変えることができて素晴らしいっ!
これが力不足なグラフィックカードだと、レンダリングの計算に、すごーーーく時間がかかります。過去の私の経験からして、1枚の斜めから見下ろしたパース画像を書き出すのに1時間かかったりとか。
って、時期もありましたがいつしか、グラフィックカードの性能を上げて行き、いまではスムーズに進めるようになったのです。それでもレンダリングは「パッパッ」とは行かず今でも数分、書き出すには、おパソ様が必死に計算しています。おパソ様は機嫌が悪くなるとブルーバックと言う、しゃれにならない攻撃をしかけてきます。たとえば夜中に作図していて、突如それに襲われると無言でチーンって感じで、私も気絶寸前です。
というわけで3Dパースを書くのには、最新のグラフィックカードが搭載されたおパソ様がよろしいです。
実は造園、エクステリアの世界にはその専門CADソフトがあります。造園CAD、エクステリアCADと言うのがありますが、それはすごーーーく高い。ま、あまり言うとその開発メーカーに怒られますが、実際、高いッス。私も使っていた時がありますが、最終的にVectorWorksに帰ってきました。←もう、何年も使い続け、バージョンアップにも隔年でついて行きましたが、経費がかかるので、今の最新版は手に入れていません;;あたらしいの、ほしーよー。VectorWorksのメーカーはA&Aさんです。こちらの会社はおせじではありませんが、サポートの対応はとても親切です。とてもそれが助かりますが、ソフト自身のマニュアルはさすがに太すぎて読み切れません。一から独自で使いこなすまで学習するにはなかなか難しいだろうと思います。
フリーソフトで手に入るCADソフトもありますが、私は長年使ってきましたVectorWorks(ベクターワークス)を愛用している訳です。で、うちのスタッフが最新版を手に入れようとしていまして、金額を見てみるとそーいう値段だったんです。そういえば今、使っているのを入手したときもそんな勢いの値段でした。
ベクターワークスはとっても使いやすく、3Dで立体パースを描くにはとってもよろしいです。平面図を書きまして、それに高さを与えて行き全部に高さを与え終わると斜めから見た角度にもって行き、レンダリング。。。レンダリングって立体に色や模様を付けて、斜めから見た場合に影の計算もした形での画像作りを言います。
そのレンダリングをする時に肝心なのがパソコンに入っているグラフィックカードというパーツ。
いいグラフィックカードだとそれだけで10万円ほどしてしまいます。ですが、これを使うと3Dの図面がマウスでくるくると向きを変えることができて素晴らしいっ!
これが力不足なグラフィックカードだと、レンダリングの計算に、すごーーーく時間がかかります。過去の私の経験からして、1枚の斜めから見下ろしたパース画像を書き出すのに1時間かかったりとか。
って、時期もありましたがいつしか、グラフィックカードの性能を上げて行き、いまではスムーズに進めるようになったのです。それでもレンダリングは「パッパッ」とは行かず今でも数分、書き出すには、おパソ様が必死に計算しています。おパソ様は機嫌が悪くなるとブルーバックと言う、しゃれにならない攻撃をしかけてきます。たとえば夜中に作図していて、突如それに襲われると無言でチーンって感じで、私も気絶寸前です。
というわけで3Dパースを書くのには、最新のグラフィックカードが搭載されたおパソ様がよろしいです。
実は造園、エクステリアの世界にはその専門CADソフトがあります。造園CAD、エクステリアCADと言うのがありますが、それはすごーーーく高い。ま、あまり言うとその開発メーカーに怒られますが、実際、高いッス。私も使っていた時がありますが、最終的にVectorWorksに帰ってきました。←もう、何年も使い続け、バージョンアップにも隔年でついて行きましたが、経費がかかるので、今の最新版は手に入れていません;;あたらしいの、ほしーよー。VectorWorksのメーカーはA&Aさんです。こちらの会社はおせじではありませんが、サポートの対応はとても親切です。とてもそれが助かりますが、ソフト自身のマニュアルはさすがに太すぎて読み切れません。一から独自で使いこなすまで学習するにはなかなか難しいだろうと思います。
えっと、ブログは何度もチャレンジをしてきましたが、いつも途中で挫折してきました。って言うのもネタが無い!ですから今回もいつまで続くのやら;;
野球チームのホームページを担当していたころがありまして、その時は結構がんばって更新していました。写真やらなんやらで、更新をしていましたがそれと言うのもネタがあったからなんです。で、こうして書いていても、HPをなんとか再構築してもだれも見てくれていなさそう!(ovo)!ウォー
それもそのはず、SEO対策か何だかしらないが検索エンジンで上位に表示される対策を何もしていない。だけどその手の営業セールス電話が毎日かかるのは、最初からお断り。だからセールスの電話かけてこないで。
んー、だけどおそるべしインターネットの世界。それらしい単語で検索かけてみたら57700件もヒットした!
ウォーおそるべし。1ページに10件表示されているとしても5770ページですわ。そこからうちのHPに行きつく人はいないでしょ。んー、自分で探すのもイヤになります。私はどこー、ってな感じです。ま、あきらめ半分でやって行きましょう。継続は力だ。
野球チームのホームページを担当していたころがありまして、その時は結構がんばって更新していました。写真やらなんやらで、更新をしていましたがそれと言うのもネタがあったからなんです。で、こうして書いていても、HPをなんとか再構築してもだれも見てくれていなさそう!(ovo)!ウォー
それもそのはず、SEO対策か何だかしらないが検索エンジンで上位に表示される対策を何もしていない。だけどその手の営業セールス電話が毎日かかるのは、最初からお断り。だからセールスの電話かけてこないで。
んー、だけどおそるべしインターネットの世界。それらしい単語で検索かけてみたら57700件もヒットした!
ウォーおそるべし。1ページに10件表示されているとしても5770ページですわ。そこからうちのHPに行きつく人はいないでしょ。んー、自分で探すのもイヤになります。私はどこー、ってな感じです。ま、あきらめ半分でやって行きましょう。継続は力だ。
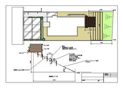
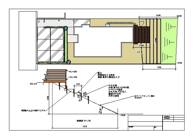
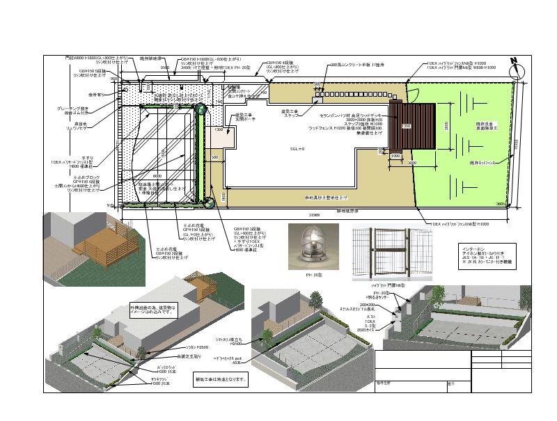
こわ。これ系のたたりはこわいですよー。まめに保存しておかないと作業中のすべてが吹っ飛びます。以前それで書き込んでいた図面が吹っ飛んで消えて半泣きになりました。パソコンが悪いのかなって、P工房のマシンに詳しい兄ちゃんのところへ持って行って見てもらいましたが「一日中負荷をかけ続けましたが異常ないですよ」なんて大見えを切って言い放つもんですから信用しきってもって帰り、毎日使っているのですが、ときどきタタリが降りてきます。どーしてだろう、何が悪いんだろう;;ホコリ?ほこりっぽい事務所のせい><;
と、まぁだましだまし図面を書きあげましたが今回見積がなかなかの金額になってしまいそうです。
お安くできるようにご相談を繰り返し、ご予算に限りなく合わせれるように考えて行くわけです。

