外構工事、エクステリア、造園工事、ウッドデッキ、左官、舗装、吹き付け、家の外回りならなんなりと!宝塚市の宝ガーデンです^^
とてもあーっと言うまの正月休みでしたね。なんだか考え事ばかりしていましたような感。。。
すでに、新規工事がどーっと始まっております。
Q氏ごくろうさまです。
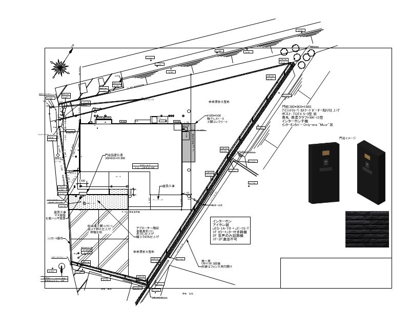
事務所サイドでは以前からプラン中の宝塚の物件N邸の追加工事の作図を行っておりましたヨ。
追加工事部分だけを書いているので至ってシンプルな図面ですわナ。
こちらが3月ごろの着工予定ですね。
んで、んで、2月には別物件を芦屋で。その他にもたくさんの物件をいただいております。
みなさま、ありがとうございます。
それよりなにより加東市へ乗り込まなくてはなりません。こちら敷地も広く、完成したご新築も大きい。
こちらからは現場までの距離がありますががんばります。
今年は西へ東への予感がすでにありますね。また、髪の毛薄くなりそう。
スカルプDしなきゃ。タタタタ。
そうだ、でも朗報があります。私、いままで植木の組合の役員をしてきたのですが、やっとこさ2年の任期を終えて役員を終了させていただけます。
みなさまのため、地域のためにやってまいりましたが、なにせ多くの時間を取られるので大変でした。
先輩方が、がんばって守ってきた組合なので、その役員をさせていただくのはうれしい事ですし勉強にもなりました。
ありがとうございました。
とくに英友緑建さん、ありがとうございました。
先日の
焼き肉、BBQ、寒かったですねー。
そりゃそうか、この寒い中、BBQするやつっていませんよね。
また、やりましょう。
その様子は英友緑建さんのHPにありました。www.eiyuu2008.com/pc/free05.html
先日の
焼き肉、BBQ、寒かったですねー。
そりゃそうか、この寒い中、BBQするやつっていませんよね。
また、やりましょう。
その様子は英友緑建さんのHPにありました。www.eiyuu2008.com/pc/free05.html
