忍者ブログ
外構工事、エクステリア、造園工事、ウッドデッキ、左官、舗装、吹き付け、家の外回りならなんなりと!宝塚市の宝ガーデンです^^
[75]  [76]  [77]  [78]  [79]  [80]  [81]  [82]  [83]  [84]  [85
×

[PR]上記の広告は3ヶ月以上新規記事投稿のないブログに表示されています。新しい記事を書く事で広告が消えます。

月曜日です。

どーっと日が進みます。
で、さっそく作図の日々。
c232436f.jpeg
隣地側に水路があり、地盤に高低差がありました。
また、逆側の隣地側には山から流れる昔からの川。。。

んー、難しい土地ではありました。

今回水路側の部分をググッっと押し広げたい工事。

これ完成すると、そうですねなんとかあと3台は多く自動車を留めていただけそう。

バレエ教室さんですが、時間になると生徒さんの送迎などで、けっこう車がごったがえしそう。

で、実はうちの娘もバレエをならっておりまして、たまたまここの教室ではないのですけれど。

いや、まぁ、そういう事で、できるだけ便利に敷地を使っていただき、しかも安全にと考えております。
ただ、花壇がなくなるのは残念なのですが、このさい言ってはおれませんので。

blogram投票ボタン
住まいるブログランキング 住まいの総合情報サイト
人気ブログランキングへ にほんブログ村 住まいブログ エクステリア・ガーデンへ

拍手[0回]

PR
朝から、猛ダッシュで見積を数件させていただきました。

それをさきほど、メールにてお届け。

このごろ、依頼が重なり、対応が遅れ気味で申し訳ありません。

で、次はえー、バレエスタジオさんにて、駐車場の拡幅工事をお聞きしております。どのようにさせていただくか。

腕の見せどころ。。。といっては大げさですが、にしむら君と共にいいアイデアをダーンっとご提示できるようにします。

ちょっと急ぎますので、もろもろの写真は今日は無しで。
blogram投票ボタン
住まいるブログランキング 住まいの総合情報サイト
人気ブログランキングへ にほんブログ村 住まいブログ エクステリア・ガーデンへ

拍手[0回]

こんばんは!はりきって昨日、させていただいたハードウッドの床板、強度の実験!

あはっ!世間の皆様からは。。。。。。。。まったくの反応なし!

ま、いいんですけどね。自社のデータ収集ということもありましたので。

you tubeにまで2本もVTRを掲載したにも関わらず、アクセス数一桁><;

で、えーそのVTRの中でセランガンバツがバキッと折れましたが、それを捨ててしまわず、腹いせに(?)あいや、無駄にしないようにストラップ、って言いますがキーホルダーって言いますか、ま、何かを作りました。
cd6c024f.JPG
名札?んー、なんだろ。

いや本当はウッドデッキのデッキ材の硬さをみなさんに知っていただく為の配布もの。

昨日のVTRで実際使った板をスライス。

で、単に革紐を通してみました。

あとは焼印を打つのみ!

100個あります。
いる?すでに予約が入っていますが。

拍手[1回]

 桑田佳祐さんの新しいアルバムに、表題のタイトルの曲があります。
「ミスタームーンライト」と読むらしい。

あの、シンガーソングレスラーの桑田さん。学生時代から僕は大好き。学生時代って小学生のころ^^;
20110218.JPG
数々の素敵な曲を産み出してきた彼がたいへんな病気になったのが去年。おどろいた。

学生のころかな、彼の自叙伝なんかを読んだり、詩集を読んだり。あ、それは歌詞の詩集でしたが。

高校時代はその歌詩集の本にたくさん同期生で寄せ書き(もう死語だな)をしてました、あれはもう無くなってしまったなー。

ミスタームーンライトって、Beatlesの有名な曲にもあって僕も大好きな曲ですね。今だに聞いている。

昔、MBSの深夜のTV番組で「突然ガバチョ!」ってのがあって、それのオープニング曲がa hard days night だったかな。<--綴りあってるかな。。。
かっこ良かった。鶴瓶さん司会で、最後にテレビにらめっこってやるやつ。知ってる?

自分の中から作品を生み出すことってとてつもなくすごい。それが人々の心に残る。桑田さんはたくさんの名曲を生み出して残してきています。代表作に「いとしのエリー」がありますが、レイ・チャールズもカバーしたほどの曲ですが、当時、売れに売れていて超多忙だったサザンオールスターズの中の桑田さんと原さんの当時カップルが、いそがしすぎてもうおつきあいはやめましょうと別れそうになった時に桑田さんが原さんに送った曲。<---あ、私の解釈が間違っていなければですが。

そんな桑田さんが今回出すアルバムの中にある「月夜の聖者達」って、うん、どこかおやじたちへの教訓?おっさん達の哀歌。

仕事、家族、仲間。。。
では、これを見なはれ!ぱくってきたけど。



拍手[1回]

ふぅ。二人の貴重な時間を費やして実験をしていました。

いやその、以前に施主様にウッドデッキをおすすめした時「じゃ、耐荷重はどのくらいあんの?」

って聞かれて答えを出せず。他社のホームページをのぞき見ると比重がいくら、曲げ強度がいくら、ヤング系数がいくらで圧縮強度がいくら、などなど結果が表示されています。

んん?ヤング系数?なんだそりゃ。とは言ってしまってはいけないのですが、私たちは消費者と密着して施工をしていますので、もっと簡単にどんだけ強いんだ?って自分でも知りたかった。

小学生の筆箱でもゾウが踏んで強度を見せたり、屋外の倉庫でも100人乗って大丈夫って言ってみたり。

そ、そうかー、よーし、ダンプを乗せてやる!って、単純よね^^v やったろうやんけっ!
ブロックを置いてブロックからブロックの橋渡しにセランガンバツとクマルのハードウッドのデッキ材、厚さ3cmを置いてダンプを乗せてみよう!
27c7d967.jpeg
うおー、こんな感じか!

にしむら君の運転でジワジワ乗ってみた。折れたら実験失敗。

ここにも掲載しないつもり。だが、耐えてる。

さすがにしなっている。でも耐えてる。

自分でも知りたい内容でしたので、やっててとても楽しい。

IMG_0403.jpg
トラックは空荷だと、前が重たい。

最初は後輪を乗せようと思っていたけど、ここはチャレンジャー、前輪で行ってみました^^v



そうか、こんなに強いんだと確信!


これで、この写真で耐荷重のご質問にはお答えできそう!


その様子をビデオでとりましたのでyou tubeにアップロード。ちょっと長いビデオになりますが、その実験VTRが、これだ。1-2-3 ↓



見た?
折れたね。ブロック同士の距離を離した所は負けた。

でも宝ガーデンではウッドデッキを組む時は、このデッキ床材の下に仕込む根太のピッチを最大90cmまでとしております。

この折れなかった方のブロック同士の距離は今回1mでした。ですので毎回この実験より強い構造でウッドデッキの組み立てを行っている訳です。
IMG_0408.jpg

そうか、強さが実感できて良かった

本日乗り上げ部分に使いましたグレーチング。

よく溝ぶたとも言われる、側溝の鉄ふたですね。
これを坂道に使い、ダンプを乗り上げましたが、これはまだ、まっさらの新品でしたが、あえなく反って少し曲がってしまいました。重さに負けました。

でもデッキ材は大丈夫でした。
73039b6d.jpeg
写真では微妙で分かりにくいですがグレーチングは少しだけ曲がってしまいました。一度乗り上げてから降りただけでしたけど。


それと使用したブロックもことごとく破損><!

6個使った中で5個が割れてしまいました。おそるべしダンプ!

やってみるもんだな!

で、付録なのですが、最後に、にしむら君に釘が打てるか実演をしてもらいました。
打てない事は分かっているのですがどんなに硬いのかを見たくて。
で、そのVTRがこれです。


これうちで一番太い釘と、いちばん技術のあるにしむら君。
でも打てませんでした。
4b175421.jpeg

もちろん、宝ガーデンでウッドデッキを施工する場合、釘を使ってデッキは組みません。


全個所ステンレスビス止めです。

デッキ材はとてつもなく丈夫なのに、釘やビスがサビて折れてしまったのではこれ意味がありません。

どこもかしこもステンレスを使います。

1本、1本打つのに下穴を開けてからステンレスビスをインパクトドライバーで打ちこみます。
これほんとにたいへんな作業。1つのウッドデッキを作るのに何本のビスを使うと思います?

あ、すみません数えたこと無かったですけど500本以上。
IMG_0419.jpg
ま、そう言うことでハードウッドのデッキをお勧めしてきました。

レッドシダーでのウッドデッキって初期費用が安い。
木樹脂のウッドデッキって出てるけど。。。否定。否定理由はここでは言わない。
アルミで木調のウッドデッキ、夏場は熱くて歩けない。

そう言うことで、これから新しくウッドデッキをされる皆様にはハードウッドのウッドデッキをおすすめする訳です。

ウリン、クマル、セランガンバツ、イタウバ、ジャラ、まだまだありますけど、そう言うのをお勧めしています。

春になり気候が良くなると、こんなウッドデッキで休日を過ごされたらいかがでしょうか?

ご用命はどうぞ宝ガーデンへ!info@takaragarden.com まで!
そしてこの撮影苦労をご理解いただき下のボタンを連打してください↓
blogram投票ボタン
住まいるブログランキング 住まいの総合情報サイト
人気ブログランキングへ にほんブログ村 住まいブログ エクステリア・ガーデンへ

拍手[1回]

「奏」って初めてじっくり聴いた。

やけに前奏が長い。その曲を聴いて感じた事「使命」「導き」

それを聴きながら、いやいや、聴き終わってからお仕事を再開した本日。

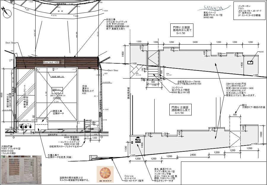
えー、A様邸の図面を再編集。担当のK氏と電話による打ち合わせを重ねてこれでどうだ!っと中身の良さを追求する。
で、できた図面がこれ。。。
20110217_2.JPGあは、一見、いつもと変わり映えしないように見える図面です。

だけど細部にはいろいろと思いが詰め込まれています。

んー、でもご予算に応じてって所もあります。
ご新築ではなかなか外構の予算って後回しになって、あまり確保できないもんですから。

これでもまだ、裏庭は広く残っており、今後の検討もたくさん必要!

アプローチは柔らかく曲線を描いたレンガ敷きと階段。

そして門柱のてっぺんも曲線。この曲線、曲げすぎるととてもぶっさくなります。ほんのりカーブ。黄金比。。。

駐車場のコンクリートの質感がどうしてもハード。ですから古レンガを使って柔らかなテクスチャーを入れる。
そしてクラフトなロートアイアン手すりと表札、それと門柱前にアイアン飾り。
毎日出入りする玄関まわりです。

今、4人家族さんですけど今月5人家族さんになる施主様が、すてきな毎日を奏でられますように。


blogram投票ボタン
住まいるブログランキング 住まいの総合情報サイト
人気ブログランキングへ にほんブログ村 住まいブログ エクステリア・ガーデンへ

拍手[1回]

土地って高いですもんね。

家を作るには土地が必要で。お料理を並べるのにお皿が必要なのと同じ。

せっかくのお料理もすてきなお皿がないと食べることはできない。

今回の施主様の土地はそのお皿がやや変形した感じ。
でもそれをできるだけ有意義に使っていただく工夫をするのも、これまたエクステリアの仕事。
20101217.JPG
今回、接道している道路は斜面、そして裏庭は絶壁。

裏庭はこのままでは活用スペース、ゼロ。

でもできるだけ有意義に使っていただきたくウッドデッキを設置する予定。

出幅1500です。
これだけでも屋外の部屋が増えた感じがする。

そしてそのデッキの先には既存の植木たちの緑。

やった。これは施主様にとってとてもお得なスペースだと思いませんか。
気候の良い時にはここをご活用いただけることだと思います。材もクマル材を使いますのでとてもハード。
硬木です。
ぜひご愛用ください。
そしてみなさん、下のボタンを気が済むまで押してください。連打だ!

blogram投票ボタン
住まいるブログランキング 住まいの総合情報サイト
人気ブログランキングへ にほんブログ村 住まいブログ エクステリア・ガーデンへ

拍手[1回]



カレンダー
02 2026/03 04
S M T W T F S
1 2 3 4 5 6 7
8 9 10 11 12 13 14
15 16 17 18 19 20 21
22 23 24 25 26 27 28
29 30 31
ブログ内検索
キーワードを打込んで検索^^ 古記事を探すのに使って!
フリーエリア

blogram投票ボタン
押して下さい。一票投じてね。

住まいるブログランキング 住まいの総合情報サイト
人気ブログランキングへ
ブログランキング・にほんブログ村へ
フィードメーター - 宝ガーデンのブログ!
カウンター
プロフィール
HN:
(有)宝ガーデン
性別:
非公開
バーコード
携帯電話でも見れます!
Template by Crow's nest 忍者ブログ [PR]