外構工事、エクステリア、造園工事、ウッドデッキ、左官、舗装、吹き付け、家の外回りならなんなりと!宝塚市の宝ガーデンです^^
晴れている。でも寒い。2月ですもんね。
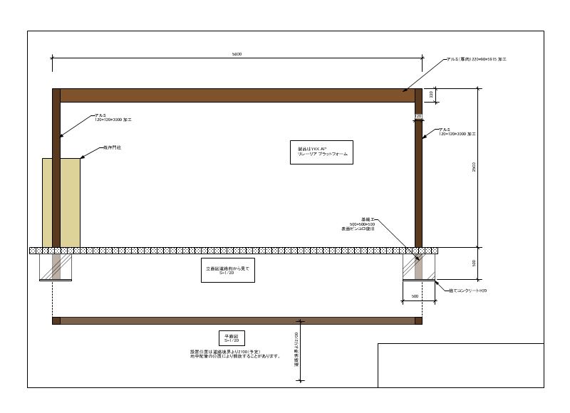
今週は、予定のウッドデッキ工事がやや延期気味になっていて、その間、作図作図&作図の日々。
家庭内ではインフルエンザが流行していて、家庭内流行と言うのかな?で、ちょっと家事を手伝いつつ。
にしむら君と作図を進めたりしていまして。
で、こーんな感じ。
まだこの図、ぜんぜん途中の段階。
高さの検討をしながらですが、やはり接道する道に勾配があり、そして建築物の設計GLと言う絶対変更できない決まった高さがあります。
道路から、決まった高さと決まった位置の玄関までを、いかに安全に、そしてカッコ良くつないで行くかを考えるのがエクステリアプランには欠かせません。
ま、この図面、まだ途中で検討段階ですので、これ安全に歩けるところまでは行っていません。
結局、階段をもう一段、駐車場勾配の再検討だなと、あいなりました。
で、本日はその清書でございます。
これを含めて5つほどの案件を進めます。ではレッツゴー^^/

今週は、予定のウッドデッキ工事がやや延期気味になっていて、その間、作図作図&作図の日々。
家庭内ではインフルエンザが流行していて、家庭内流行と言うのかな?で、ちょっと家事を手伝いつつ。
にしむら君と作図を進めたりしていまして。
で、こーんな感じ。
高さの検討をしながらですが、やはり接道する道に勾配があり、そして建築物の設計GLと言う絶対変更できない決まった高さがあります。
道路から、決まった高さと決まった位置の玄関までを、いかに安全に、そしてカッコ良くつないで行くかを考えるのがエクステリアプランには欠かせません。
ま、この図面、まだ途中で検討段階ですので、これ安全に歩けるところまでは行っていません。
結局、階段をもう一段、駐車場勾配の再検討だなと、あいなりました。
で、本日はその清書でございます。
これを含めて5つほどの案件を進めます。ではレッツゴー^^/
A様邸の図面をすすめさせていただきました。
ご用命ありがとうございます。奥様、今月ご出産予定という事で本当におめでとうございます。
そしてご新築と言う事でWでおめでとうございます。
いっしょうけんめいプランをさせていただいております。洋風がお好みということでしたので、それなりに雰囲気のあるエクステリアをめざして作図いたしました。
その結果、門柱はこっています。天端がR型の曲線、そして空洞(スリット)があり、門柱の化粧はキャニオンローラー仕上げと私たちは呼んでいますがローラーで横引き、ゴロゴロと模様を付けます。で、てっぺんには洋瓦を乗せます。汚れ防止と色目がいいので採用して行きます!
アプローチはむりやりでも捻りたい所です。
ど真っすぐは良くないです。角々でもいいので曲がっているべきです。
その理由はここでは内緒。施主様だけにお知らせしますので。
さ、では次の仕事に写りますので。また後ほど~。。。
こんにちは。
宝塚にもシンシンと雪が降っております。
気温も下がりとても寒いですね。
そんな中、うちの次男坊がインフルエンザでダウン><;
明日の幼稚園での生活発表会で大太鼓をたたくはずが、あえなく不参加となる様子。
家でややぐったりしながら、新しい戦隊物「ゴーカイジャー」のビデオを見ている。
で、こちらの物件、数年前にエクステリア施工させていただきましたI様邸。それこそゴウカイな門扉。
私たちにしてみるとなつかしい現場。。。
広々としたタイル貼りの階段、作りましたね~。
で、そちらの施主様から連絡。
お久しぶりの施主様からの連絡は、メンテナンスの件がとても多いです。
今回は、扉のビスが取れた!との事。
「ええ、あのゴウカイな扉の金具?」
と心配でしたが裏側の扉のことでした。
四国化成と言うメーカーの商品、4枚折れ戸の部分でした。
で、当時の写真をひも解く。
あ、こっちだったか。
毎日の動作がある部分は金属疲労と言いますか、弱ってくるのでしょうか?
右も、左も、ひじ坪部分のビスが両方とも切れて落ちたらしく。。。
ビスの頭は残っているけど、そこから先が切れているらしく、柱と扉が離れ離れになっているらしい。
扉が重たい分、負担がかかるのでしょうか。。。
では今週中に対策と言う事で。再訪問!

宝塚にもシンシンと雪が降っております。
気温も下がりとても寒いですね。
そんな中、うちの次男坊がインフルエンザでダウン><;
明日の幼稚園での生活発表会で大太鼓をたたくはずが、あえなく不参加となる様子。
家でややぐったりしながら、新しい戦隊物「ゴーカイジャー」のビデオを見ている。
で、こちらの物件、数年前にエクステリア施工させていただきましたI様邸。それこそゴウカイな門扉。
私たちにしてみるとなつかしい現場。。。
広々としたタイル貼りの階段、作りましたね~。
で、そちらの施主様から連絡。
お久しぶりの施主様からの連絡は、メンテナンスの件がとても多いです。
今回は、扉のビスが取れた!との事。
「ええ、あのゴウカイな扉の金具?」
と心配でしたが裏側の扉のことでした。
四国化成と言うメーカーの商品、4枚折れ戸の部分でした。
で、当時の写真をひも解く。
毎日の動作がある部分は金属疲労と言いますか、弱ってくるのでしょうか?
右も、左も、ひじ坪部分のビスが両方とも切れて落ちたらしく。。。
ビスの頭は残っているけど、そこから先が切れているらしく、柱と扉が離れ離れになっているらしい。
扉が重たい分、負担がかかるのでしょうか。。。
では今週中に対策と言う事で。再訪問!
