外構工事、エクステリア、造園工事、ウッドデッキ、左官、舗装、吹き付け、家の外回りならなんなりと!宝塚市の宝ガーデンです^^
ふぅ。毎年、この暮れの時期、考え事の山積み。。。
左の写真は土曜日から着手させていただいております川西市のO様邸。ぐるっと生垣で囲いますので緑が鮮やかな仕上がりとなります。
生垣は最初からこの図面のようにびっしり枝は張っていません。
年に1度、または2度、植木のハサミで刈りこむ必要があります。虫との戦いもあります。
ブロック積みの壁とは違い、すきな高さまで伸ばす事もできますので、その方がいいかなと思います。
で、こちら工期があまりない;;
Q氏のチームでがんばってもらっていますが施主様、クリスマスの入居です。
あ、そうそうクリスマスと言えばワインで乾杯。ここのワイン、良質でめちゃ安っ!http://item.rakuten.co.jp/inoue-sakaya/10000789?s-id=win_01_histreco
買いなさいっ!そして下のボタンをどれでもいいから押してください。
このごろアクセス数 ↓
こんにちは。すっかり秋で家のまわりは落ち葉だらけ。
そんななか、うちの末っ子の友達が集まり、うちのカキの木の下でカキの収穫。。。
たくさん採れましたが、最後に掃除するときに熟しすぎたカキを握りつぶしてしまい、右手がカキでどろどろになってしまいました。うへっ
で、本日は午前中に完成現場へ行ってきました。
擁壁と電動シャッターの現場。静々動々と言う電動シャッターの商品が入っていますが、これとってもかっこいい。
うんうん。これとっても動作がスムーズで静か。
むかしの電動シャッターの動作音、キャリキャリ言う音がありません。
でもその分、高価。

門扉もクロスフェイスでかっこいい。
ルイスポールセンの照明がとてもオシャレ。
私のセンスではなく施主様のセンスの良さです。
でもって、あとは帰ってきてひたすら作図。

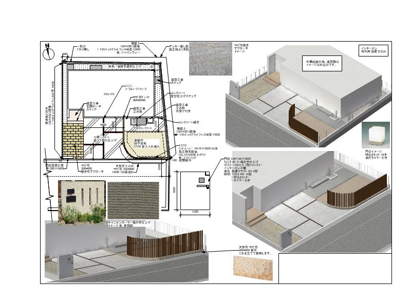
ちょうど、擁壁と電動シャッターの図面を書いておりました。
ほぼそのまんまの組み合わせ。
あ、ぜんぜんかわるけど、昨日安全大会に行ってきまして建築現場での実際起こった死亡事故の話を聞きました。
やっぱりめちゃくちゃ気を付けないとあきませんね。
けがをしてはほんとにダメです。死ぬなんてダメです。
みんなほんとに気を付けましょう。

そんななか、うちの末っ子の友達が集まり、うちのカキの木の下でカキの収穫。。。
たくさん採れましたが、最後に掃除するときに熟しすぎたカキを握りつぶしてしまい、右手がカキでどろどろになってしまいました。うへっ
で、本日は午前中に完成現場へ行ってきました。
擁壁と電動シャッターの現場。静々動々と言う電動シャッターの商品が入っていますが、これとってもかっこいい。
むかしの電動シャッターの動作音、キャリキャリ言う音がありません。
でもその分、高価。
門扉もクロスフェイスでかっこいい。
ルイスポールセンの照明がとてもオシャレ。
私のセンスではなく施主様のセンスの良さです。
でもって、あとは帰ってきてひたすら作図。
ちょうど、擁壁と電動シャッターの図面を書いておりました。
ほぼそのまんまの組み合わせ。
あ、ぜんぜんかわるけど、昨日安全大会に行ってきまして建築現場での実際起こった死亡事故の話を聞きました。
やっぱりめちゃくちゃ気を付けないとあきませんね。
けがをしてはほんとにダメです。死ぬなんてダメです。
みんなほんとに気を付けましょう。
