外構工事、エクステリア、造園工事、ウッドデッキ、左官、舗装、吹き付け、家の外回りならなんなりと!宝塚市の宝ガーデンです^^
こんにちは。
芦屋市してA様邸門柱の下地ができました。
帰国したばかりのにしむら君が現場へ。
下地となるセメントがまだ乾いていない色。。。
これが完全乾燥するまで数日まちましょう。
そして吹き付け塗装していきます。
あ、今回は吹き付けではなく、コテで厚塗りした塗装材をローラーで横引き模様。
キャニオンローラーでごろごろと転がして横向きにラインを刻みこみます。
きゃ、きゃ、キャニオンローラーって、なんでそんな名前なのか分かりませんが。。。
お出かけの時に玄関先でホコリをくっつけて取り除く通称「ころころ」ってありますよね、あんなイメージ。
まぁ、できあがったらこちらのブログで公開。

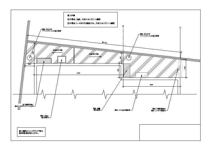
で、宝塚市でお聞きしていました犬走りの件、図面をまとめさせていただきましたので、先ほど施主様へメールで提出。
これ、施工させていただくと、こちら随分便利に使っていただける空間となります。
せっかくの敷地ですからね。ぜひ有効利用してください。
お力になります!

芦屋市してA様邸門柱の下地ができました。
帰国したばかりのにしむら君が現場へ。
下地となるセメントがまだ乾いていない色。。。
これが完全乾燥するまで数日まちましょう。
そして吹き付け塗装していきます。
あ、今回は吹き付けではなく、コテで厚塗りした塗装材をローラーで横引き模様。
キャニオンローラーでごろごろと転がして横向きにラインを刻みこみます。
きゃ、きゃ、キャニオンローラーって、なんでそんな名前なのか分かりませんが。。。
お出かけの時に玄関先でホコリをくっつけて取り除く通称「ころころ」ってありますよね、あんなイメージ。
まぁ、できあがったらこちらのブログで公開。
で、宝塚市でお聞きしていました犬走りの件、図面をまとめさせていただきましたので、先ほど施主様へメールで提出。
これ、施工させていただくと、こちら随分便利に使っていただける空間となります。
せっかくの敷地ですからね。ぜひ有効利用してください。
お力になります!
PR
Comment
コメントの修正にはpasswordが必要です。任意の英数字を入力して下さい。
