外構工事、エクステリア、造園工事、ウッドデッキ、左官、舗装、吹き付け、家の外回りならなんなりと!宝塚市の宝ガーデンです^^
本日は雨でしたねー。まったくもって。
で、とことんデスクワーク。
スキマスイッチの「奏」をひたすら何回も何回も聞きながら。
わたし、ちょっと歌うまいんです、ひそかに。
ですから自動車で移動中の時は、車の中で熱唱。。。
コブクロとかサザンとか好きで、桑田佳祐が好き。
は、まぁそんなこたぁどうでもいいっすね。
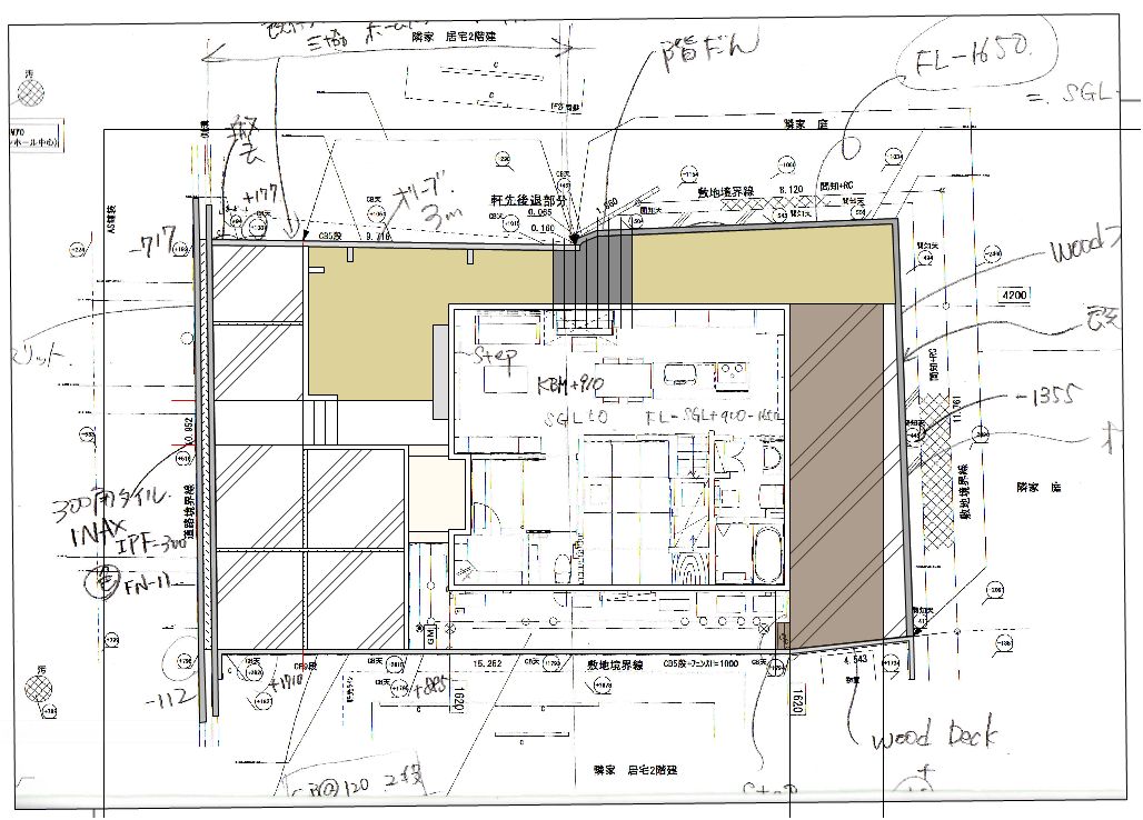
今日はそういう事で、ひたすらデスクワークなのですが、にしむら君と打合せをして彼プランの図面を作図していた。

ま、いまんとこ、こーんな感じ。
よろしおすか?
おおきなウッドデッキを設置する計画。
いつも思いますけど、広いウッドデッキはいいですよー。
ものすごい利用価値。こちらは裏庭にけっこうな高低差があります。
そこへ高足のウッドデッキ。ナイスなプランです。
さすが一級エクステリアプランナーだっ!
かかってこいっ! m(" ")/


で、とことんデスクワーク。
スキマスイッチの「奏」をひたすら何回も何回も聞きながら。
わたし、ちょっと歌うまいんです、ひそかに。
ですから自動車で移動中の時は、車の中で熱唱。。。
コブクロとかサザンとか好きで、桑田佳祐が好き。
は、まぁそんなこたぁどうでもいいっすね。
今日はそういう事で、ひたすらデスクワークなのですが、にしむら君と打合せをして彼プランの図面を作図していた。
ま、いまんとこ、こーんな感じ。
よろしおすか?
おおきなウッドデッキを設置する計画。
いつも思いますけど、広いウッドデッキはいいですよー。
ものすごい利用価値。こちらは裏庭にけっこうな高低差があります。
そこへ高足のウッドデッキ。ナイスなプランです。
さすが一級エクステリアプランナーだっ!
かかってこいっ! m(" ")/
PR
Comment
コメントの修正にはpasswordが必要です。任意の英数字を入力して下さい。
