外構工事、エクステリア、造園工事、ウッドデッキ、左官、舗装、吹き付け、家の外回りならなんなりと!宝塚市の宝ガーデンです^^
一日くもっておりましたね。
今年のこの夏の花火大会は、うちから行ける範囲の花火大会は
どうやら中止にならずに、花火を挙げきった様子。
曇りの中で行われた猪名川の花火大会も
当日、ぐうぜんその近くを通りかかり渋滞に巻き込まれたが
どうやら曇り、小雨の中、花火大会は完了したんですよね。
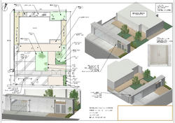
宝塚市山手台は、阪急電車で言うと山本駅の近くにありまして
山本駅から山手側に見える長尾山を切り開き開発した土地。

そこからは、武庫川の花火大会も
猪名川の花火大会も良く見える。
そんな条件のいい所のエクステリア図面です。
こちらは、もうすぐにでも着工可能な状態で
あとは、この外構図面を施主様に見ていただき
了解をえるだけなのです。
なんどかこちらの図面を修正させていただいてきました。
どうか、こちらの内容でりょうかいしていただき、宝ガーデンにも花火を挙げさせて下さい。
下のボタンを押して応援をお願いします!

"宝ガーデンへメール"
今年のこの夏の花火大会は、うちから行ける範囲の花火大会は
どうやら中止にならずに、花火を挙げきった様子。
曇りの中で行われた猪名川の花火大会も
当日、ぐうぜんその近くを通りかかり渋滞に巻き込まれたが
どうやら曇り、小雨の中、花火大会は完了したんですよね。
宝塚市山手台は、阪急電車で言うと山本駅の近くにありまして
山本駅から山手側に見える長尾山を切り開き開発した土地。
そこからは、武庫川の花火大会も
猪名川の花火大会も良く見える。
そんな条件のいい所のエクステリア図面です。
こちらは、もうすぐにでも着工可能な状態で
あとは、この外構図面を施主様に見ていただき
了解をえるだけなのです。
なんどかこちらの図面を修正させていただいてきました。
どうか、こちらの内容でりょうかいしていただき、宝ガーデンにも花火を挙げさせて下さい。
下のボタンを押して応援をお願いします!
"宝ガーデンへメール"
PR
こんばんは。夜です。
雨です。
地面が冷却されて行きます。
あわただしい一日でございました。
神戸市垂水区にて大きめの擁壁工事がスタートいたしました。
初日です。

重機でがっぽがっぽ掘削を開始しています。
ここで残土がすぐに発生いたします。
それをダンプにて場外処分。

まだまだ掘削です。
道路との高低差が最大2mありまして、道路側と宅地側をその完成する擁壁で段差を付けます。
神戸市には決まった神戸市型と言う擁壁の構造図がありますので
それに沿った形で組んで行く訳です。
3週間ほどかかる見込みです。

それと並行しまして、目隠しフェンスの打ち合わせへ。
ななんと、高さ6mの目隠しフェンスです。
鉄骨で組み上げて、横張の板フェンスでご提案いたしましたが、
板は却下。
本日、初めて施主様にお会いしましたら、板のフェンスではなく、採光を考えてすりガラス調にしてくださいとの事。
んー、これまたLIXILさんに頼るしかないかと言ったところ。
採光できてルーバーフェンスで風通し良くが、施主様のご希望です。
ちょっときつめの雨が現場方面も降ったらしいので、明日の擁壁現場が少し心配。
だけど、明日も明後日も、PCの前からは離れられず、作図作図の日々でございます。
現場サイドよろしくお願いします。
下のボタンを押していただき応援をお願いいたします!


"宝ガーデンへメール"
雨です。
地面が冷却されて行きます。
あわただしい一日でございました。
神戸市垂水区にて大きめの擁壁工事がスタートいたしました。
初日です。
重機でがっぽがっぽ掘削を開始しています。
ここで残土がすぐに発生いたします。
それをダンプにて場外処分。
まだまだ掘削です。
道路との高低差が最大2mありまして、道路側と宅地側をその完成する擁壁で段差を付けます。
神戸市には決まった神戸市型と言う擁壁の構造図がありますので
それに沿った形で組んで行く訳です。
3週間ほどかかる見込みです。
それと並行しまして、目隠しフェンスの打ち合わせへ。
ななんと、高さ6mの目隠しフェンスです。
鉄骨で組み上げて、横張の板フェンスでご提案いたしましたが、
板は却下。
本日、初めて施主様にお会いしましたら、板のフェンスではなく、採光を考えてすりガラス調にしてくださいとの事。
んー、これまたLIXILさんに頼るしかないかと言ったところ。
採光できてルーバーフェンスで風通し良くが、施主様のご希望です。
ちょっときつめの雨が現場方面も降ったらしいので、明日の擁壁現場が少し心配。
だけど、明日も明後日も、PCの前からは離れられず、作図作図の日々でございます。
現場サイドよろしくお願いします。
下のボタンを押していただき応援をお願いいたします!
"宝ガーデンへメール"
芦屋市のS様邸。プランニングを進めさせていただきました。
建築のプランニングと同時進行で外構も考える。緑化も考える。

そしてこう言った内容に。
ちょっと勢いで、と言いますかお聞きしたイメージが
こう言った内容だったのかと思いまして。
要塞ちっくになってしまいました。
今から、もうちょっと軽量化いたします。
150万円マイナスになるプランに変更開始。


"宝ガーデンへメール"
建築のプランニングと同時進行で外構も考える。緑化も考える。
そしてこう言った内容に。
ちょっと勢いで、と言いますかお聞きしたイメージが
こう言った内容だったのかと思いまして。
要塞ちっくになってしまいました。
今から、もうちょっと軽量化いたします。
150万円マイナスになるプランに変更開始。
"宝ガーデンへメール"
こんばんは。
めっきり涼しくなりました。と、早く言ってみたい。
激暑の毎日です。
みなさん、水分補給をしていただいて、体調管理には十分お気を付け下さい。
さてさて、そんな中、本日は伊丹市のZ様邸へ植木の剪定作業に伺ってまいりました。
年間管理と言う事でご契約いただいておりまして、1年に数回、そのお庭をご訪問させていただいております。

うえむら君、いつもごくろうさまです。
ていねいな仕事で枝割の木を整えていきます。
植木は生き物ですから、どうしても大きく育ってきます。
ほっておくと枝があばれて、美しかった樹形も乱れてしまいます。
この写真のようなスタイルをキープするには、やはり毎年のお手入れが欠かせません。
自然な樹形の木は毎年剪定しなくてもいい場合がありますが。
さて、事務所サイド。
本日は2つの打ち合わせをさせていただきました。
そこから戻りまして、図面の修正!

こーいう具合にまとめさせていただきました。
門柱が黒と白のツートン。現場サイドでは、白と黒で2日に分けて作業しなくてはなりません。
ごめんね、現場サイド。でも、完成がたのしみです。
明日はまたもや打ち合わせ。
おー、こりゃ忙しくなってきたぞー。
外構工事、エクステリア、ウッドデッキなど、屋外のことでしたらなんなりと。
お気軽にご相談ください。
では、下のボタンを押していただきまして、応援をお願いします。


"宝ガーデンへメール"
めっきり涼しくなりました。と、早く言ってみたい。
激暑の毎日です。
みなさん、水分補給をしていただいて、体調管理には十分お気を付け下さい。
さてさて、そんな中、本日は伊丹市のZ様邸へ植木の剪定作業に伺ってまいりました。
年間管理と言う事でご契約いただいておりまして、1年に数回、そのお庭をご訪問させていただいております。
うえむら君、いつもごくろうさまです。
ていねいな仕事で枝割の木を整えていきます。
植木は生き物ですから、どうしても大きく育ってきます。
ほっておくと枝があばれて、美しかった樹形も乱れてしまいます。
この写真のようなスタイルをキープするには、やはり毎年のお手入れが欠かせません。
自然な樹形の木は毎年剪定しなくてもいい場合がありますが。
さて、事務所サイド。
本日は2つの打ち合わせをさせていただきました。
そこから戻りまして、図面の修正!
こーいう具合にまとめさせていただきました。
門柱が黒と白のツートン。現場サイドでは、白と黒で2日に分けて作業しなくてはなりません。
ごめんね、現場サイド。でも、完成がたのしみです。
明日はまたもや打ち合わせ。
おー、こりゃ忙しくなってきたぞー。
外構工事、エクステリア、ウッドデッキなど、屋外のことでしたらなんなりと。
お気軽にご相談ください。
では、下のボタンを押していただきまして、応援をお願いします。
"宝ガーデンへメール"
こんにちは。
では、伊丹に行ってきます!
午前中に1件、午後から1件。打合せです。
猛暑ですけどがんばりましょう!
こりゃいそがしくなってきたぞー。
では、移動開始。タタタタタ
もうしわけありません、下のボタンを押して応援よろしくお願いします。

"宝ガーデンへメール"
では、伊丹に行ってきます!
午前中に1件、午後から1件。打合せです。
猛暑ですけどがんばりましょう!
こりゃいそがしくなってきたぞー。
では、移動開始。タタタタタ
もうしわけありません、下のボタンを押して応援よろしくお願いします。
"宝ガーデンへメール"
あー、東洋大姫路が負けてしまいました。良い試合でしたね。
兵庫県民としましては応援していたのですが、ざんねんです。
しかし、どの学校の選手も、この猛暑の中、一生懸命がんばっている。
すばらしい姿です。どの学校が優勝しても、おかしくありません。
さて、宝ガーデンでもお盆明けと言うことで、スタートを切っている訳です。
明日、打ち合わせ予定の宝塚市山手台K様邸の門廻りをイメージ化しまして
打ち合わせの準備をしております。

以前、シンプルすぎた感じの門柱でしたので
少し、ガラスブロックを入れたりしての演出。
これをもって行きまして、明日、施主様との打ち合わせになります。
ご意見をお聞きしながら、プランの完成をめざします。
プランが完成しましたら、いよいよ施工開始となる訳です。
なっとくいただいた、内容で施工をさせていただきますので。
植木も入りますし、完成がとても楽しみです。
猛暑ですけども、がんばりましょう。

"宝ガーデンへメール"
兵庫県民としましては応援していたのですが、ざんねんです。
しかし、どの学校の選手も、この猛暑の中、一生懸命がんばっている。
すばらしい姿です。どの学校が優勝しても、おかしくありません。
さて、宝ガーデンでもお盆明けと言うことで、スタートを切っている訳です。
明日、打ち合わせ予定の宝塚市山手台K様邸の門廻りをイメージ化しまして
打ち合わせの準備をしております。
以前、シンプルすぎた感じの門柱でしたので
少し、ガラスブロックを入れたりしての演出。
これをもって行きまして、明日、施主様との打ち合わせになります。
ご意見をお聞きしながら、プランの完成をめざします。
プランが完成しましたら、いよいよ施工開始となる訳です。
なっとくいただいた、内容で施工をさせていただきますので。
植木も入りますし、完成がとても楽しみです。
猛暑ですけども、がんばりましょう。
"宝ガーデンへメール"
