外構工事、エクステリア、造園工事、ウッドデッキ、左官、舗装、吹き付け、家の外回りならなんなりと!宝塚市の宝ガーデンです^^
おはようございます。
くもり、時々小雨の感じです。
今日は2つのお宅へ、植木の剪定作業に伺っております。
宝塚市売布、そして箕面ですね。
植木は生き物ですから、どんな植物でも成長します。
ぼうぼうに茂り過ぎた植木は剪定作業をしましてさっぱりとさせます。
ほったらかしにしておきますと、どうしても害虫の温床になりがちなので
日差しを良くして、さっぱりしておく事が大事かもしれません。
宝ガーデンでは、そう言ったお庭の管理作業も承ります。
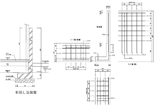
で、芦屋市では、本日、掘削作業中。擁壁と言いましてコンクリートの壁面を作るための基礎工事中です。
ユンボでがさーっと掘削いたしまして、その基礎部分に着手しているところです。
このね、一見なにを示しているのか分からない図面です。
これを現場で見ながら
鉄筋の配置を確かめたりして進める訳です。
で、現場にて格闘しているかわそえさんです。
ご苦労様です。
どうしても、掘削工事などはホコリがたってしまいます。
ご近隣への配慮もありがとう。

"宝ガーデンへメール"
くもり、時々小雨の感じです。
今日は2つのお宅へ、植木の剪定作業に伺っております。
宝塚市売布、そして箕面ですね。
植木は生き物ですから、どんな植物でも成長します。
ぼうぼうに茂り過ぎた植木は剪定作業をしましてさっぱりとさせます。
ほったらかしにしておきますと、どうしても害虫の温床になりがちなので
日差しを良くして、さっぱりしておく事が大事かもしれません。
宝ガーデンでは、そう言ったお庭の管理作業も承ります。
で、芦屋市では、本日、掘削作業中。擁壁と言いましてコンクリートの壁面を作るための基礎工事中です。
ユンボでがさーっと掘削いたしまして、その基礎部分に着手しているところです。
このね、一見なにを示しているのか分からない図面です。
これを現場で見ながら
鉄筋の配置を確かめたりして進める訳です。
で、現場にて格闘しているかわそえさんです。
ご苦労様です。
どうしても、掘削工事などはホコリがたってしまいます。
ご近隣への配慮もありがとう。
"宝ガーデンへメール"
PR
こんにちは!
まったくもって空元気でございます。
みなさん暑さにまいっていませんか。とても暑いです。
さて、そんな中、擁壁工事をしている真っ最中です。
始まりました。芦屋市にて擁壁工事。まだ、基礎段階中で見ていただける映像はあまりありませんが。

基礎部分を掘削するには、既存のタイル貼りのテラスを切り開かなければいけなくて
で、カッターでコレ切断中です。
ねずみ色のホース、ダクトみたいな、ゾウの鼻みたいなのは
集塵機と言いまして、周りにホコリが行かないように吸い込む現場用掃除機ですね。
暑い中ですが、現場サイド、どーっと進めて行きましょう。快晴の間に。

で、事務所サイドではプランニング中。見積中です。
加古川市のN様邸。
リフォームの物件です。
担当者と施主様と我々とで相談して良い物をおつくり致します。
ではお手数ですが応援よろしくお願いします。

"宝ガーデンへメール"
まったくもって空元気でございます。
みなさん暑さにまいっていませんか。とても暑いです。
さて、そんな中、擁壁工事をしている真っ最中です。
始まりました。芦屋市にて擁壁工事。まだ、基礎段階中で見ていただける映像はあまりありませんが。
基礎部分を掘削するには、既存のタイル貼りのテラスを切り開かなければいけなくて
で、カッターでコレ切断中です。
ねずみ色のホース、ダクトみたいな、ゾウの鼻みたいなのは
集塵機と言いまして、周りにホコリが行かないように吸い込む現場用掃除機ですね。
暑い中ですが、現場サイド、どーっと進めて行きましょう。快晴の間に。
で、事務所サイドではプランニング中。見積中です。
加古川市のN様邸。
リフォームの物件です。
担当者と施主様と我々とで相談して良い物をおつくり致します。
ではお手数ですが応援よろしくお願いします。
"宝ガーデンへメール"
こんにちは!
あたー;;ブログさぼってしまいました。
と言いますのも、この日曜日と月曜日、地域の草刈り作業があったんですよね。言ってみれば奉仕活動。

うちの地域にはどーんと池がたくさんありまして
ようはその池の草刈り作業なんです。
2日がかりですよ。んー、ちょっと疲れましたね。
組合員12名でどーっと刈って行くのと
その後の掃除、刈った草の処分まで。

炎天下の中でですから、ちょっとまいったッスね。
宝ガーデンではマンションや個人邸の緑地管理作業もいたしすので、こう言った作業は慣れているつもりでしたが
わたし、久々に草刈りしたもんですから、ちょっと筋肉痛。。。

で、いただいたお昼ごはんは
こーんな感じ。
アヒャ、少なっ。
ちょと少ないかな^^;
そのころにしむら君はと言うと

ここかっ!
甲子園。
このごろ、私の知り合いが甲子園に行く事が多い。
松尾君もそうだ。
あ、松尾君ってかなり有名人。
http://www.koreshittemasu.com/
好青年で、ユーモアがあり楽しい人。
上のリンクから是非ごらんになってください。
「松尾修三のコレしってます?」

あ、さて、今日は朝から芦屋市の現場へ行ってきたのですが
どーっと帰ってきてすぐ図面をCADっていました。
取り急ぎと言う事でしたので
がんばって作成してメールにて提出。完了。
神戸市垂水区舞多門のK様邸。
なかなか急こう配で難しい敷地ではありましたが
できるだけ費用がかからないように工夫しました。
で、今週は芦屋市にて擁壁工事。コンクリートの壁面の事を擁壁と言います。
それをしつつ、個人様邸の植木の剪定作業を2件ほどさせていただきます。
宝塚市のS様邸と、豊中市のO様邸ですね。
いつもありがとうございます。
ではその準備作業にうつりますので、私はこれにて。
どうか下のボタンをかたっぱしから押してください。応援よろしくお願いします。

"宝ガーデンへメール"
あたー;;ブログさぼってしまいました。
と言いますのも、この日曜日と月曜日、地域の草刈り作業があったんですよね。言ってみれば奉仕活動。
うちの地域にはどーんと池がたくさんありまして
ようはその池の草刈り作業なんです。
2日がかりですよ。んー、ちょっと疲れましたね。
組合員12名でどーっと刈って行くのと
その後の掃除、刈った草の処分まで。
炎天下の中でですから、ちょっとまいったッスね。
宝ガーデンではマンションや個人邸の緑地管理作業もいたしすので、こう言った作業は慣れているつもりでしたが
わたし、久々に草刈りしたもんですから、ちょっと筋肉痛。。。
で、いただいたお昼ごはんは
こーんな感じ。
アヒャ、少なっ。
ちょと少ないかな^^;
そのころにしむら君はと言うと
ここかっ!
甲子園。
このごろ、私の知り合いが甲子園に行く事が多い。
松尾君もそうだ。
あ、松尾君ってかなり有名人。
http://www.koreshittemasu.com/
好青年で、ユーモアがあり楽しい人。
上のリンクから是非ごらんになってください。
「松尾修三のコレしってます?」
あ、さて、今日は朝から芦屋市の現場へ行ってきたのですが
どーっと帰ってきてすぐ図面をCADっていました。
取り急ぎと言う事でしたので
がんばって作成してメールにて提出。完了。
神戸市垂水区舞多門のK様邸。
なかなか急こう配で難しい敷地ではありましたが
できるだけ費用がかからないように工夫しました。
で、今週は芦屋市にて擁壁工事。コンクリートの壁面の事を擁壁と言います。
それをしつつ、個人様邸の植木の剪定作業を2件ほどさせていただきます。
宝塚市のS様邸と、豊中市のO様邸ですね。
いつもありがとうございます。
ではその準備作業にうつりますので、私はこれにて。
どうか下のボタンをかたっぱしから押してください。応援よろしくお願いします。
"宝ガーデンへメール"
なんだって、今日、30度をのきなみ超えていたって。
んー暑かった一日でしたねー。
まさに最適なお仕事日和と言いますか、グッドタイミング。

今日は、こちらM様邸。
奥に建築が見えておりまして
写真の下には既存のウッドデッキが見えていますね。
ちょっと遊具と。
こちら元気な男の子2人兄弟がおられまして。
こちらのお庭で元気に遊んでいると言うことです。

今日のような炎天下の中で、遊んでいると
ちょっとそれはあまりにも過酷。
木製のウッドデッキの上でも
靴を脱いで上がると足の裏が暑い。
そこでリフォーム。
オーニングシェードと言うテント生地をデッキ上に貼りまして
デッキに影を作りましょう、と言う内容です。
さっそくリフォーム作業に取り掛かっているにしむら君です。
長袖着てるから汗びっしょりって感じ。

その場所にロングの柱を立てるので
にしむら君がそこの床板を外して
角柱の部分だけ床板を切り欠き作業する訳です。
切り欠く作業は木工の中でも細かい作業となりまして
ジグソーって言う機械を使いますね。
中学生の時に技術家庭って授業がありまして、たしかその時にもそんな機械があったような。。。
こーんな感じで小細工して行く訳です。

あらかじめ、こう言ったフック金具をてっぺんに取り付けておきまして
ここにロープを通してシェードセイルを四方から引っ張り上げる訳。
左にちらっと写っているのが
超最新型インパクトドリル!
マキタの製品。

で、柱を立ててシェードを引っ張ると
こうなる。
このシェードセイル
3m60の正方形。
でかい!
けっこう広い屋根になる。
で、さらにグーっと四方から引っ張ると

こーんな感じ。
理想的にデッキ上にも
日陰ができたー^^v
直射日光とシェードの影の部分で11度も温度差があると言います。
今日、実際測っていないけどね。
でも、ここで施工していた私たちが実体験として、この影の涼しさを体感できました。

柱が、3m60以上にそれぞれ離れた位置に立っていますので
もうちょっと西とか、東とか、家よりとか。。。
ロープの引っ張り具合でコントロールできる訳です。
けっこう、この夏、使っていただく機会が多いと思います。
いかがでしょうか、エクステリアでできる
省エネ、エコ施工。
ジグソーがんばったにしむら君の為にも、下のボタンを押して応援お願いします。連打で。

"宝ガーデンへメール"
んー暑かった一日でしたねー。
まさに最適なお仕事日和と言いますか、グッドタイミング。
今日は、こちらM様邸。
奥に建築が見えておりまして
写真の下には既存のウッドデッキが見えていますね。
ちょっと遊具と。
こちら元気な男の子2人兄弟がおられまして。
こちらのお庭で元気に遊んでいると言うことです。
今日のような炎天下の中で、遊んでいると
ちょっとそれはあまりにも過酷。
木製のウッドデッキの上でも
靴を脱いで上がると足の裏が暑い。
そこでリフォーム。
オーニングシェードと言うテント生地をデッキ上に貼りまして
デッキに影を作りましょう、と言う内容です。
さっそくリフォーム作業に取り掛かっているにしむら君です。
長袖着てるから汗びっしょりって感じ。
その場所にロングの柱を立てるので
にしむら君がそこの床板を外して
角柱の部分だけ床板を切り欠き作業する訳です。
切り欠く作業は木工の中でも細かい作業となりまして
ジグソーって言う機械を使いますね。
中学生の時に技術家庭って授業がありまして、たしかその時にもそんな機械があったような。。。
こーんな感じで小細工して行く訳です。
あらかじめ、こう言ったフック金具をてっぺんに取り付けておきまして
ここにロープを通してシェードセイルを四方から引っ張り上げる訳。
左にちらっと写っているのが
超最新型インパクトドリル!
マキタの製品。
で、柱を立ててシェードを引っ張ると
こうなる。
このシェードセイル
3m60の正方形。
でかい!
けっこう広い屋根になる。
で、さらにグーっと四方から引っ張ると
こーんな感じ。
理想的にデッキ上にも
日陰ができたー^^v
直射日光とシェードの影の部分で11度も温度差があると言います。
今日、実際測っていないけどね。
でも、ここで施工していた私たちが実体験として、この影の涼しさを体感できました。
柱が、3m60以上にそれぞれ離れた位置に立っていますので
もうちょっと西とか、東とか、家よりとか。。。
ロープの引っ張り具合でコントロールできる訳です。
けっこう、この夏、使っていただく機会が多いと思います。
いかがでしょうか、エクステリアでできる
省エネ、エコ施工。
ジグソーがんばったにしむら君の為にも、下のボタンを押して応援お願いします。連打で。
"宝ガーデンへメール"
こんにちは。
大騒動の夜の翌日は、睡眠のリズムが崩れたからか、どうしてもぼーっとしている。
寝出す時間が遅いのはしょっちゅうの事なので、ま、昨日も2時ごろだったかな。
ま、それよくある事。
私、2F建ての1Fで寝ているのですが、まだ幼い子供を横に寝ている訳なのです。
で、何が大騒動って。5時でしたか。来客。。。
そんな早朝に来客。私の首筋に。。。え?
ハハハ。ムカデ。
ツゥ-------------
いや実は、ひと月前も一度ご訪問がありまして
その時はうちの息子が「かぁさん、むしー><!」と、
これ夕方の出来事で、みんな起きている時間で、息子も刺されずに済んだのですが
昨日は寝込みにご訪問。しかも私の首筋。
なにか、首筋に「ササッ」って動きを感じて
パッっと体を起こして、隣に寝ている息子をグイッっと引っ張って退避させておいて、そこらを見たら
にょろにょろ~っと、出た。
すぐに、様子や動きをみながらティッシュ、5.6枚取ってきてホールド!
被害無く済んだのです。
以前に、うちの奥さんも同じ目に遭った事がありまして、そして先月のご訪問もありましたので
うちでは対策の薬を手に入れておりました。
http://mshut.web.infoseek.co.jp/index.html

その名も「ムカデシャット」です。
評判もいいですし、匂いもヒノキ。
でも中身はこれで効くのかなと言う感じの
小さい袋に入ったヒノキの匂い袋みたいな物。
半身半疑、先月から使っていたが
うーん、出てこない。ムカデ、出てこない。そうか、評判通りか!
で、完全に安心しきっていました。でも、ムカデって1匹いたら、夫婦でもう1匹いてると聞きます。
それで、ぜったいもう1匹いるはずだと思っていました。
だけどこのムカデシャットのおかげで、外へ退散したんだとばかり思っていました。そこへ昨日の訪問でした。

こちらのメーカー
屋内用のこの写真の商品と
屋外用の薬もあります。
それ両方揃えて使ったのですが。。。
んー、きっとこの薬が悪かったのではなく
前からいたのが、まだそこに居残っていたんですね。
あー、ほんといやな思いしましたです。
さ、忘れて元気出して行きましょう。みなさまも、お気をつけて。
そして、眠るときはいい夢を見ましょう。

"宝ガーデンへメール"
大騒動の夜の翌日は、睡眠のリズムが崩れたからか、どうしてもぼーっとしている。
寝出す時間が遅いのはしょっちゅうの事なので、ま、昨日も2時ごろだったかな。
ま、それよくある事。
私、2F建ての1Fで寝ているのですが、まだ幼い子供を横に寝ている訳なのです。
で、何が大騒動って。5時でしたか。来客。。。
そんな早朝に来客。私の首筋に。。。え?
ハハハ。ムカデ。
ツゥ-------------
いや実は、ひと月前も一度ご訪問がありまして
その時はうちの息子が「かぁさん、むしー><!」と、
これ夕方の出来事で、みんな起きている時間で、息子も刺されずに済んだのですが
昨日は寝込みにご訪問。しかも私の首筋。
なにか、首筋に「ササッ」って動きを感じて
パッっと体を起こして、隣に寝ている息子をグイッっと引っ張って退避させておいて、そこらを見たら
にょろにょろ~っと、出た。
すぐに、様子や動きをみながらティッシュ、5.6枚取ってきてホールド!
被害無く済んだのです。
以前に、うちの奥さんも同じ目に遭った事がありまして、そして先月のご訪問もありましたので
うちでは対策の薬を手に入れておりました。
http://mshut.web.infoseek.co.jp/index.html
その名も「ムカデシャット」です。
評判もいいですし、匂いもヒノキ。
でも中身はこれで効くのかなと言う感じの
小さい袋に入ったヒノキの匂い袋みたいな物。
半身半疑、先月から使っていたが
うーん、出てこない。ムカデ、出てこない。そうか、評判通りか!
で、完全に安心しきっていました。でも、ムカデって1匹いたら、夫婦でもう1匹いてると聞きます。
それで、ぜったいもう1匹いるはずだと思っていました。
だけどこのムカデシャットのおかげで、外へ退散したんだとばかり思っていました。そこへ昨日の訪問でした。
こちらのメーカー
屋内用のこの写真の商品と
屋外用の薬もあります。
それ両方揃えて使ったのですが。。。
んー、きっとこの薬が悪かったのではなく
前からいたのが、まだそこに居残っていたんですね。
あー、ほんといやな思いしましたです。
さ、忘れて元気出して行きましょう。みなさまも、お気をつけて。
そして、眠るときはいい夢を見ましょう。
"宝ガーデンへメール"
こだわって植栽作業中です。
暑いけど良い天気で良かった。
やすださん、いつもごくろうさまです。

シマトネリコ株立ちです。
株立ちとは、根元で幹が数方向へ分かれているスタイル。
このごろは、こういった株立ちスタイルが人気。
1本で、けっこうボリュームを感じられるのと、形が自然体ってことで。
以前までの日本の建築物に添えられる樹木は、毎年、植木屋さんに剪定してもらい、整える必要がありました。
ですから、毎年カチッとした形に成形する。
このごろはそう言ったスタイルは人気ではない。管理費用もかかりますしね。植木屋さん代。
と言いながらも、私どももお庭の植木剪定作業もお請けしておりますので
それも大事な作業内容のひとつです。
うえの写真は、そのシマトネリコを植えるにあたりどちらを正面に向けるか、ってところを考え中。
いちばん美しい面を正面に向ける。角度なども見て、1本の木を植えるにも相当考えます。
で、やすださんが考え中なわけです。
で、こちらのN様邸、和室に地窓がありまして、来客をもてなすとき、その低いまどからチラっと外が見えます。
そこへ緑化。

にしむら君が超ハイテク携帯電話で撮影した1枚。
腕の出演はやすださん。かな。
低い窓からの眺めなので、大きな植物はいらない。
フッキソウ、トクサ、ナルコユリ、ノムラモミジ小で、構成しようと言うたくらみ^^
さて、これでいよいよ完成に近付いてきました。と、思いきや、まだ肝心の玄関前
「炭モルタル」がまだだ^^;
N様邸の炭モルタルについては、こちらの着工時の記事に書いたのでそれを見てください。
http://takaragarden.7narabe.net/Entry/592/
これが結構、技術等級Aだと思う。すばらしい完成を願う。
完成しましたら、またここで見ていただきますね。

"宝ガーデンへメール"
暑いけど良い天気で良かった。
やすださん、いつもごくろうさまです。
シマトネリコ株立ちです。
株立ちとは、根元で幹が数方向へ分かれているスタイル。
このごろは、こういった株立ちスタイルが人気。
1本で、けっこうボリュームを感じられるのと、形が自然体ってことで。
以前までの日本の建築物に添えられる樹木は、毎年、植木屋さんに剪定してもらい、整える必要がありました。
ですから、毎年カチッとした形に成形する。
このごろはそう言ったスタイルは人気ではない。管理費用もかかりますしね。植木屋さん代。
と言いながらも、私どももお庭の植木剪定作業もお請けしておりますので
それも大事な作業内容のひとつです。
うえの写真は、そのシマトネリコを植えるにあたりどちらを正面に向けるか、ってところを考え中。
いちばん美しい面を正面に向ける。角度なども見て、1本の木を植えるにも相当考えます。
で、やすださんが考え中なわけです。
で、こちらのN様邸、和室に地窓がありまして、来客をもてなすとき、その低いまどからチラっと外が見えます。
そこへ緑化。
にしむら君が超ハイテク携帯電話で撮影した1枚。
腕の出演はやすださん。かな。
低い窓からの眺めなので、大きな植物はいらない。
フッキソウ、トクサ、ナルコユリ、ノムラモミジ小で、構成しようと言うたくらみ^^
さて、これでいよいよ完成に近付いてきました。と、思いきや、まだ肝心の玄関前
「炭モルタル」がまだだ^^;
N様邸の炭モルタルについては、こちらの着工時の記事に書いたのでそれを見てください。
http://takaragarden.7narabe.net/Entry/592/
これが結構、技術等級Aだと思う。すばらしい完成を願う。
完成しましたら、またここで見ていただきますね。
"宝ガーデンへメール"
