外構工事、エクステリア、造園工事、ウッドデッキ、左官、舗装、吹き付け、家の外回りならなんなりと!宝塚市の宝ガーデンです^^
うちの、にしむら君は一級エクステリアプランナー。
うぉ。かっこいい。
今日は朝からプランニングの続き。。。
エクステリアプランナー、合格するの難しいっすよ。でもさすがににしむら君
数年前にすでに合格済み。ナイス。
では、その彼とプランニングの続きを。。。

にほんブログ村
うぉ。かっこいい。
今日は朝からプランニングの続き。。。
エクステリアプランナー、合格するの難しいっすよ。でもさすがににしむら君
数年前にすでに合格済み。ナイス。
では、その彼とプランニングの続きを。。。
にほんブログ村
PR
こんにちは!
今日はここにいろいろ書いてきました!だって昨日さぼったから。
ま、そう言う事でもうひとつの記事を。。。
じゃ~ん、にしむら君が取りつけてきてくれました。
外構、エクステリアではなく、建築の外壁に良く使う飾り。
だが、S様邸、電動シャッターのゲートにエンブレム!
エンブレムと言うか何て名前なのか。分からず。
ミノネットワークさんからの飾りです。
ほんとは丸い部分と、下のお皿の部分は別物。
これを施主様に「これとこれを組み合わせてこういう風にとりつけましょう!」とご提案。即、採用;;
それでこういう風に仕上がりました。
にしむら君は取り付けにだいぶ苦労したようですがきれいに仕上がっております。ばっちぐー
さ、本日の仕上げに下のボタンを連打してください><;
では (:D)┼─┤バタ

今日はここにいろいろ書いてきました!だって昨日さぼったから。
ま、そう言う事でもうひとつの記事を。。。
じゃ~ん、にしむら君が取りつけてきてくれました。
外構、エクステリアではなく、建築の外壁に良く使う飾り。
だが、S様邸、電動シャッターのゲートにエンブレム!
エンブレムと言うか何て名前なのか。分からず。
ミノネットワークさんからの飾りです。
ほんとは丸い部分と、下のお皿の部分は別物。
これを施主様に「これとこれを組み合わせてこういう風にとりつけましょう!」とご提案。即、採用;;
それでこういう風に仕上がりました。
にしむら君は取り付けにだいぶ苦労したようですがきれいに仕上がっております。ばっちぐー
さ、本日の仕上げに下のボタンを連打してください><;
では (:D)┼─┤バタ
ごめんねー、古い写真見てたついでに見つけてしまったので。。。
去年だったかな、ウッドデッキをさせていただきました現場の写真で。
ハードウッドのウッドデッキの床下の構造。
ま、こーんな感じです。束石があって、そのまわりは草止め砕石敷きをしていますね。
すみっこの写っているのは当時のにしむら君。
彼、木工事が得意。と言うか得意になった?
今までハードウッドばっかりでウッドデッキを何軒も何軒も組んできました。
さすが!
写真手前に小箱。これステンレスビス。サビないように。
Q氏のチームで組んだお庭に隣接です。
曲線のウッドデッキ床とお庭がとてもマッチしています。
この灯篭、こちらの家に昔からある物。
風化具合がとてもイイ。
これには照明器具を仕込んでいます。

そして白い壁。。。
都窯業さんの穴開きレンガ!きれいっ!
ん~ほんときれいっすね。

去年だったかな、ウッドデッキをさせていただきました現場の写真で。
ハードウッドのウッドデッキの床下の構造。
すみっこの写っているのは当時のにしむら君。
彼、木工事が得意。と言うか得意になった?
今までハードウッドばっかりでウッドデッキを何軒も何軒も組んできました。
さすが!
写真手前に小箱。これステンレスビス。サビないように。
曲線のウッドデッキ床とお庭がとてもマッチしています。
この灯篭、こちらの家に昔からある物。
風化具合がとてもイイ。
これには照明器具を仕込んでいます。
そして白い壁。。。
都窯業さんの穴開きレンガ!きれいっ!
ん~ほんときれいっすね。
過去の施工写真をこのごろ見ておりましたら、施工写真は莫大な枚数!
な、な、なんと何万枚もパソコンに保存されておりましたっ!
うへっ><;
施工写真ですので、そのほとんどは施工中の鉄筋の写真とか基礎構造を撮った写真たち。
ま、その中でもいろいろ完成後の写真もございまして。ちょっとそれらを公開!
トヨタさんの店舗前。植栽工事をさせていただいた時。
んー。お店の前を華やかにと言う事で。
ちらっとウッドフェンスも写っております。
船舶照明が夜、店舗前を柔らかく照らします。
道行く人も眺めてくれていることでしょう。
で、レンガ門柱。
スリットが2か所ありますネ。
これ、積むのたいへん!むずかしいぜぇ~。古耐火レンガでございます。
1個1個を水につけて水を飲ませ、あと手洗いしてホコリを落とす。
レンガを使い、とってもハンドメイドなイメージの門柱です。派手ではないけど暖かい色彩の門柱です。
なぜこの写真を、と言うとこのごろこのブログに「レンガ」と言う単語が出て来てなかったので、レンガの単語を使うと検索にひっかかるかなー、ってのが正直な思いなのです。で、その流れから行くと次にウッドデッキ。
これは数年前に施工させていただいたウッドデッキ!
材質は「イペ」
んー、今は値段が上がり過ぎて施主様にはお勧めしておりません。
ハードウッドの仲間になります。が、日当たりなどの条件で変色します。成分のタンニンが蒸散することで変色するようです。

この感じの色に、そうですねー1年でなってしまいます。
そろってこの色になったなら見れますけど、板によっては強弱が出てしまいマダラになってしまうと、すこし良くない。
防腐の意味では板に何も塗らなくて結構なのですが、変色を嫌って塗装をする方もおられます。リボス、オスモなどなど。
さー、仕事にもどろう。えっと、ハードウッドで木柱ゲートを組むプラン作り。今回は何材で行こうかな。セランガンバツ、かな。

な、な、なんと何万枚もパソコンに保存されておりましたっ!
うへっ><;
施工写真ですので、そのほとんどは施工中の鉄筋の写真とか基礎構造を撮った写真たち。
ま、その中でもいろいろ完成後の写真もございまして。ちょっとそれらを公開!
んー。お店の前を華やかにと言う事で。
ちらっとウッドフェンスも写っております。
船舶照明が夜、店舗前を柔らかく照らします。
道行く人も眺めてくれていることでしょう。
スリットが2か所ありますネ。
これ、積むのたいへん!むずかしいぜぇ~。古耐火レンガでございます。
1個1個を水につけて水を飲ませ、あと手洗いしてホコリを落とす。
レンガを使い、とってもハンドメイドなイメージの門柱です。派手ではないけど暖かい色彩の門柱です。
なぜこの写真を、と言うとこのごろこのブログに「レンガ」と言う単語が出て来てなかったので、レンガの単語を使うと検索にひっかかるかなー、ってのが正直な思いなのです。で、その流れから行くと次にウッドデッキ。
材質は「イペ」
んー、今は値段が上がり過ぎて施主様にはお勧めしておりません。
ハードウッドの仲間になります。が、日当たりなどの条件で変色します。成分のタンニンが蒸散することで変色するようです。
この感じの色に、そうですねー1年でなってしまいます。
そろってこの色になったなら見れますけど、板によっては強弱が出てしまいマダラになってしまうと、すこし良くない。
防腐の意味では板に何も塗らなくて結構なのですが、変色を嫌って塗装をする方もおられます。リボス、オスモなどなど。
さー、仕事にもどろう。えっと、ハードウッドで木柱ゲートを組むプラン作り。今回は何材で行こうかな。セランガンバツ、かな。
気が付けば昨日ブログを休んでしまっていました。
そして今、昨日のことを思い出しながら。
そっか、けっこう遅くまでにしむら君とプランニング。
だーんっと、こんな感じでプランを作成。
ウッドフェンスに囲まれたソフトな雰囲気のプラン。
建築の窓越しに緑が見れる。
植木は間近で眺める事は少なく、通りがかりに知らず知らずの間に人の目に入っているもの。
アプローチの両サイドや家の中からの窓越しに緑があるのは、知らない間に癒しを届けているアイテムだ。
今回のプランはシンプルな門柱、笠木で汚れを防止。駐車場はリュウノヒゲのボーダーを挟みながらの床、そして電動ゲート。
ウッドデッキもあり、これいたれりつくせりです。
みなさま、ご新築のみなさま、リフォームをご検討中のみなさま、外構、エクステリアでご家庭が変身します。

朝から野球の役員仕事でグランドに行ってました。ではお仕事にもどりましょう。

そして今、昨日のことを思い出しながら。
そっか、けっこう遅くまでにしむら君とプランニング。
ウッドフェンスに囲まれたソフトな雰囲気のプラン。
建築の窓越しに緑が見れる。
植木は間近で眺める事は少なく、通りがかりに知らず知らずの間に人の目に入っているもの。
アプローチの両サイドや家の中からの窓越しに緑があるのは、知らない間に癒しを届けているアイテムだ。
今回のプランはシンプルな門柱、笠木で汚れを防止。駐車場はリュウノヒゲのボーダーを挟みながらの床、そして電動ゲート。
ウッドデッキもあり、これいたれりつくせりです。
みなさま、ご新築のみなさま、リフォームをご検討中のみなさま、外構、エクステリアでご家庭が変身します。
朝から野球の役員仕事でグランドに行ってました。ではお仕事にもどりましょう。
おつかれさまでした、自分。
あ、いや、みなさんおつかれさまでした。
今日は10日と言う事でバタバタな1日となりました。
朝からいろいろありました。
さて、現場サイド、ほんとうに御苦労さまです!
とても広い広いF様邸もいよいよ完成いたしました。
きれいなナチグロ洗い出しに仕上がっております。
飽きない落ち着きがあるアプローチです。建築とのマッチングも良しですネ。
Q氏のチームが現場サイドでがんばってくれました。
門柱も家に合っていますね。口金ポストですから本来は門柱の背面側にポストのおしりが出っ張るのですが、今回のF様邸門柱では門柱を普通より太っちょにしてポストの奥行きをスッポリ納めました。
その事で、ずっしりと重量感のあるヘビー級な門柱が完成しております。
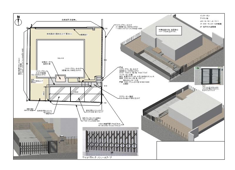
で、事務所サイドではバタバタの中、図面を作成。K様邸のエクステリア、外構図面が完成しております。

広いお庭と広い駐車場です。
これが第1回目の図面提出となりますので、これにて即決定とはなりませんが、早めに打ち合わせを重ねて、内容決定に持ち込みたい考えです。
外構、エクステリアの出来栄えで、建築全体の完成イメージが決まります。
住宅はもちろん中身重視ではありますけど、エクステリアの検討もとても重要な要素だと考えます。

あ、いや、みなさんおつかれさまでした。
今日は10日と言う事でバタバタな1日となりました。
朝からいろいろありました。
さて、現場サイド、ほんとうに御苦労さまです!
とても広い広いF様邸もいよいよ完成いたしました。
きれいなナチグロ洗い出しに仕上がっております。
飽きない落ち着きがあるアプローチです。建築とのマッチングも良しですネ。
Q氏のチームが現場サイドでがんばってくれました。
門柱も家に合っていますね。口金ポストですから本来は門柱の背面側にポストのおしりが出っ張るのですが、今回のF様邸門柱では門柱を普通より太っちょにしてポストの奥行きをスッポリ納めました。
その事で、ずっしりと重量感のあるヘビー級な門柱が完成しております。
で、事務所サイドではバタバタの中、図面を作成。K様邸のエクステリア、外構図面が完成しております。
広いお庭と広い駐車場です。
これが第1回目の図面提出となりますので、これにて即決定とはなりませんが、早めに打ち合わせを重ねて、内容決定に持ち込みたい考えです。
外構、エクステリアの出来栄えで、建築全体の完成イメージが決まります。
住宅はもちろん中身重視ではありますけど、エクステリアの検討もとても重要な要素だと考えます。
図面の修正ができあがりましてあとは提出するだけとなりました。
あ、あとこちらに見積をお付けいたします。
もうすぐ春がやってきます。
3月は移動の季節ですね。
ご新居にお引越しの皆さまで、まだ、外構工事、エクステリア、駐車場でお悩みのみなさま、どうぞお気軽にお問い合わせメールをください。
こちらの地図を見ていただくと私ども宝ガーデンの施工範囲が見ていただけます。
今でしたらまだなんとか3月中の工事完成を達成できそうです。
卒業、入学のシーズンですかー。学生諸君、がんばれ。
