外構工事、エクステリア、造園工事、ウッドデッキ、左官、舗装、吹き付け、家の外回りならなんなりと!宝塚市の宝ガーデンです^^
おじさんですけども、それがなにかっ?
そうなんですね、気が付いたらおじさんになっておりました。
ちょっとこのごろ、身動きとれません。
あは、ちょっとこんな気分。
さて、元気出して行きましょう。
今日は昼間に黒ラーメンを食べました。
が、ちょっと不満。いつもの味じゃない。んー、この店の味、不安定!と思いやや不満ぎみでした。
が、完食。そりゃ食べるワナ。
黒いッス。
えー、それで、元気を出してまたがんばらなきゃ。

私は、家族以外で好きなものと言いますと、サザンオールスターズ、桑田佳祐、コブクロ、ラーメン、ってところでしょうか。
コブクロは球場のライブで前から5列目で見た事あるんですよ。
ジーパンのすり切れ具合まで見れた。

ちいさいころからサザンオールスターズが好きでした。
この頃、桑田佳祐氏がガンで入院されていましたネ。でも復帰できてほんとうに良かったです。
天才メロディーメーカーですよ。うん。
じゃ、これをお聞きください。
この曲、サファーをしてる旦那さんがガンになって亡くなってしまう映画の主題歌。
さー、元気出して行きましょう。
そうなんですね、気が付いたらおじさんになっておりました。
ちょっとこのごろ、身動きとれません。
さて、元気出して行きましょう。
今日は昼間に黒ラーメンを食べました。
が、ちょっと不満。いつもの味じゃない。んー、この店の味、不安定!と思いやや不満ぎみでした。
が、完食。そりゃ食べるワナ。
黒いッス。
えー、それで、元気を出してまたがんばらなきゃ。
私は、家族以外で好きなものと言いますと、サザンオールスターズ、桑田佳祐、コブクロ、ラーメン、ってところでしょうか。
コブクロは球場のライブで前から5列目で見た事あるんですよ。
ジーパンのすり切れ具合まで見れた。
ちいさいころからサザンオールスターズが好きでした。
この頃、桑田佳祐氏がガンで入院されていましたネ。でも復帰できてほんとうに良かったです。
天才メロディーメーカーですよ。うん。
じゃ、これをお聞きください。
この曲、サファーをしてる旦那さんがガンになって亡くなってしまう映画の主題歌。
さー、元気出して行きましょう。
ん~、すこし頭脳が煮詰まってきた。。。
小野市のウッドデッキプランをしたり、その他提出物を送信&発送。。。
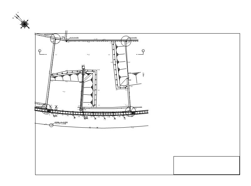
そして次に写真の物件、宝塚市、K様邸です。
こちらまだ提出までに猶予がありますが、その次のプラン、その次、その次がありますので、先に取り掛かっているわけです。
みなさま、ご用命いただきましてほんとうにありがとうございます。
こちら、小高い土地にある南向きの敷地。近くに広い公園があります。静かな、なんと言いましょうか、私も宝塚なのですが別世界。うらやましい。

ですが、ちょっと残念な事に、すでに造成された土地なのですが東側が途中までしか擁壁がされていない><;
なぜだっ!と言いたくなる。
これは高低差1m以下になる部分なので、造成屋さんが擁壁の必要がなくって割愛したとでも言いましょうか。
ほんと必要な部分だけ工事してそれ以外はしない。きっぱりとしていますナ。
それでもって東側の敷地内に緩やかな坂道が発生。あとはどんな建築が建とうがおかまいなし。
で、最後のエクステリア工事で費用が発生してしまいます。
施主様としては、土地を買い、家を買い、エクステリアを買う訳なのですが、土地を平たくする費用って、ほとんどの人は計算外。
それにお金がかかってしまうのって、僕が施主でも不愉快。だけど坂道が残ったままなのも、もっと不愉快。だからシブシブその部分に費用をかけざるを得ないっすね。
門周りのデザインや駐車場が美しく仕上がり、機能を持った例えばカーポートに費用が掛かるのは分かりますけど、土地を平たくする為のブロックや擁壁って、とくにこの東側の一部って、人目に付かない、言ってみれば東隣さんだけが見える所。
でしょ。エクステリアって、結局そう言う見えない部分からも費用が発生してしまいます。
私たちもその部分はサービスとは言えませんし、真正面からの出来栄えと金額が一致しない場合も多々あります。
あ、すみません、ダァ~っと書いてしまいました。では、作図に戻りますのでこれにて。
にしむら君、かわそえさん、ちょっとまた無理言いますけどよろしくお願いします。

小野市のウッドデッキプランをしたり、その他提出物を送信&発送。。。
そして次に写真の物件、宝塚市、K様邸です。
こちらまだ提出までに猶予がありますが、その次のプラン、その次、その次がありますので、先に取り掛かっているわけです。
みなさま、ご用命いただきましてほんとうにありがとうございます。
こちら、小高い土地にある南向きの敷地。近くに広い公園があります。静かな、なんと言いましょうか、私も宝塚なのですが別世界。うらやましい。
ですが、ちょっと残念な事に、すでに造成された土地なのですが東側が途中までしか擁壁がされていない><;
なぜだっ!と言いたくなる。
これは高低差1m以下になる部分なので、造成屋さんが擁壁の必要がなくって割愛したとでも言いましょうか。
ほんと必要な部分だけ工事してそれ以外はしない。きっぱりとしていますナ。
それでもって東側の敷地内に緩やかな坂道が発生。あとはどんな建築が建とうがおかまいなし。
で、最後のエクステリア工事で費用が発生してしまいます。
施主様としては、土地を買い、家を買い、エクステリアを買う訳なのですが、土地を平たくする費用って、ほとんどの人は計算外。
それにお金がかかってしまうのって、僕が施主でも不愉快。だけど坂道が残ったままなのも、もっと不愉快。だからシブシブその部分に費用をかけざるを得ないっすね。
門周りのデザインや駐車場が美しく仕上がり、機能を持った例えばカーポートに費用が掛かるのは分かりますけど、土地を平たくする為のブロックや擁壁って、とくにこの東側の一部って、人目に付かない、言ってみれば東隣さんだけが見える所。
でしょ。エクステリアって、結局そう言う見えない部分からも費用が発生してしまいます。
私たちもその部分はサービスとは言えませんし、真正面からの出来栄えと金額が一致しない場合も多々あります。
あ、すみません、ダァ~っと書いてしまいました。では、作図に戻りますのでこれにて。
にしむら君、かわそえさん、ちょっとまた無理言いますけどよろしくお願いします。
兵庫県、広いワァ。
先週末のある日、移動移動移動。。。
毎日ではないですけど
車で移動しながら思ったことは兵庫県、広っ!
大阪に近い兵庫県もありましたら岡山に近い兵庫県もありますし、淡路島も兵庫県。
そっか、それなりのお土地柄が兵庫県にはたくさんあります。
今日、事務所で取りかかろうとしていますウッドデッキのご提案の作図は現場が小野市。。。
広大な敷地の物件です。お庭が広すぎてもてあましておられる。
フェンスの向こうに畑がありますが、じつはそこも施主様の土地、まだまだ写っていない個所も全部。
ここにウッドデッキをどーんと作るご提案中です。
フフッ、お任せ下さい!
奥様、旦那さま、子供さんたち、みなさん満足のスペースをここに設置いたします。
奥様、デッキの上で季節の良い日にはお友達とランチ!
子供さんたち、デッキの上で夏はプール、オーニングテントの日陰付き、旦那さま、デッキでのくつろぎとゴルフの練習。
デッキの上にはオーニングでテントを張れるように工夫しますし、さらにゴルフボールを打ち込んでもらえるネットを貼れるようにします。さらにデッキ外の余地は芝生にて。
現在見積価格157万円也!
ここから宝ガーデンはおそるべきお値引きをいたしますö/
デッキ材料はクマルの予定。ハードウッドの仲間。デッキの床下には二度と草が生えてこないように草止めの砕石敷きとします。ま、生えてくるかもしれません。それは施主様にもお伝え済み。生えにくくする訳です。
とても広い部屋が2つ分ぐらい増築された感覚ですネ。
兵庫県は広くても意味ないけど、我が家に広いデッキができると、とても得した気分になると思います。
ご活用ください!

先週末のある日、移動移動移動。。。
毎日ではないですけど
車で移動しながら思ったことは兵庫県、広っ!
大阪に近い兵庫県もありましたら岡山に近い兵庫県もありますし、淡路島も兵庫県。
そっか、それなりのお土地柄が兵庫県にはたくさんあります。
今日、事務所で取りかかろうとしていますウッドデッキのご提案の作図は現場が小野市。。。
広大な敷地の物件です。お庭が広すぎてもてあましておられる。
ここにウッドデッキをどーんと作るご提案中です。
フフッ、お任せ下さい!
奥様、旦那さま、子供さんたち、みなさん満足のスペースをここに設置いたします。
奥様、デッキの上で季節の良い日にはお友達とランチ!
子供さんたち、デッキの上で夏はプール、オーニングテントの日陰付き、旦那さま、デッキでのくつろぎとゴルフの練習。
デッキの上にはオーニングでテントを張れるように工夫しますし、さらにゴルフボールを打ち込んでもらえるネットを貼れるようにします。さらにデッキ外の余地は芝生にて。
現在見積価格157万円也!
ここから宝ガーデンはおそるべきお値引きをいたしますö/
デッキ材料はクマルの予定。ハードウッドの仲間。デッキの床下には二度と草が生えてこないように草止めの砕石敷きとします。ま、生えてくるかもしれません。それは施主様にもお伝え済み。生えにくくする訳です。
とても広い部屋が2つ分ぐらい増築された感覚ですネ。
兵庫県は広くても意味ないけど、我が家に広いデッキができると、とても得した気分になると思います。
ご活用ください!
しゃべってなんぼじゃーぃ。って、事でもないのですが、打ち合わせの連日です。
みなさまありがとうございます。
昨日は芦屋市、今日は西宮でN様邸の件です。
昨日はとても充実した内容の打ち合わせでした。なかなか施主様と会う時間が無く、会ったその時に集中して内容を決めて行きます。
昨日の打ち合わせ時間、3時間30分。
これでも決まらない部分があります。って、いいましてもやはり悩んでおられる部分が残りますね。
これを繰り返し、ご納得の内容で施工に踏み切ります。
今日は月曜日、あっと言う間に午前の時間が走りすぎました。午後から西宮へ行ってきます。
あ、先日いつもの材料屋さんからフグのセット、届きました。う~ありがとー。
だけど内容2人前かしら。うちの家族、総勢7名。。。た、足りん;;

みなさまありがとうございます。
昨日は芦屋市、今日は西宮でN様邸の件です。
昨日はとても充実した内容の打ち合わせでした。なかなか施主様と会う時間が無く、会ったその時に集中して内容を決めて行きます。
昨日の打ち合わせ時間、3時間30分。
これでも決まらない部分があります。って、いいましてもやはり悩んでおられる部分が残りますね。
これを繰り返し、ご納得の内容で施工に踏み切ります。
今日は月曜日、あっと言う間に午前の時間が走りすぎました。午後から西宮へ行ってきます。
あ、先日いつもの材料屋さんからフグのセット、届きました。う~ありがとー。
だけど内容2人前かしら。うちの家族、総勢7名。。。た、足りん;;
