外構工事、エクステリア、造園工事、ウッドデッキ、左官、舗装、吹き付け、家の外回りならなんなりと!宝塚市の宝ガーデンです^^
こんばんは。
なかなか暖かくなりません。今日、今夜まだ寒さが抜けない様子。被災地のみなさま、暖を取るのにも大変なご苦労だと思います。
被災地以外の方は、燃料やその他の物資も買いだめしないように心がけましょう。
先ほどまでA様邸の図面修正をコツコツとさせていただきました。

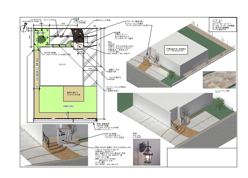
南側に広いお庭!コレ最高。
そこにウッドデッキのご予定と高麗芝。
あ、そう言えばついこの前、完成したところのK様邸も同じ取り合わせ。
緑の芝生とウッドデッキはとても良く似合います。
で、こちらのA様邸、玄関廻りはとても洋風。
ロートアイアンで手すりを取り付ける予定。
で、アンティークレンガで階段とアプローチです。
いまのところ、こーんな手すりを考え中。
実は何度か打ち合わせの中で手すりの図柄も変わってきていまして、前回はこの記事に書いていますね。
ちょっとクリックして見てくださいマセ。
前回の形よりも簡素化したように見えますが、パーツを減らしてご予算に合わせて行く訳です。
けしておかしな手すりが出来上がる訳ではありません。
こちらの施主様、先日、子供さんが誕生したばかり。
その子供さんたちがお庭で遊んでいる姿が、にこやかに想像されます。


なかなか暖かくなりません。今日、今夜まだ寒さが抜けない様子。被災地のみなさま、暖を取るのにも大変なご苦労だと思います。
被災地以外の方は、燃料やその他の物資も買いだめしないように心がけましょう。
先ほどまでA様邸の図面修正をコツコツとさせていただきました。
南側に広いお庭!コレ最高。
そこにウッドデッキのご予定と高麗芝。
あ、そう言えばついこの前、完成したところのK様邸も同じ取り合わせ。
緑の芝生とウッドデッキはとても良く似合います。
で、こちらのA様邸、玄関廻りはとても洋風。
ロートアイアンで手すりを取り付ける予定。
で、アンティークレンガで階段とアプローチです。
いまのところ、こーんな手すりを考え中。
実は何度か打ち合わせの中で手すりの図柄も変わってきていまして、前回はこの記事に書いていますね。
ちょっとクリックして見てくださいマセ。
前回の形よりも簡素化したように見えますが、パーツを減らしてご予算に合わせて行く訳です。
けしておかしな手すりが出来上がる訳ではありません。
こちらの施主様、先日、子供さんが誕生したばかり。
その子供さんたちがお庭で遊んでいる姿が、にこやかに想像されます。

PR
Comment
コメントの修正にはpasswordが必要です。任意の英数字を入力して下さい。
