外構工事、エクステリア、造園工事、ウッドデッキ、左官、舗装、吹き付け、家の外回りならなんなりと!宝塚市の宝ガーデンです^^
雨。。。
ざーっと降り注いだ。
そんな中、息子の担任の先生、家庭訪問ありがとうございました。
さて、私はと言えばN様邸のエクステリアプラン作成のため、事務所にこもっておりました。
途中、いただき物のスターバックスのコーヒーを ”どりっぷ”
そうしていた事をすっかり忘れており、いま冷えた状態のコーヒーを飲んだ。
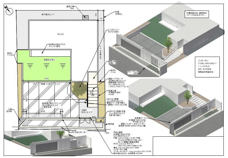
で、軽快にマウスを操作して図面の完成と見積の完成。施主様は豊中市のN様です。
某芸能人と同姓同名のN氏。 ö/” ヒャホー
ご依頼いただきましてありがとうございます。
第一印象、敷地が広いっ!

電動シャッターが付いています。
今回は文化シャッターさんの一品。
とても静かな動作音の電動シャッターです。
すばらしい。
この電動シャッターの商品名「御前様」
だそうです。
商品リンクはこちら
むむ、ごぜんさま?
御前様と言うとどうしても、飲みに行った帰りが遅くなって、帰ったら奥さんに怒られる感じが浮かぶ。。。
とても美しいフォルムで、静かに動くところが売り?と思います。これきっと、夜中に帰ってきても静かだから
ご近隣に迷惑かけませんヨって事でしょうか。
確かに、昔の電動シャッター、手動でもそうでしたが開閉する時に「ギャラギャラ~」と音がしてましたから。
そして、電動の門扉。これいい。
インターホンが鳴って、家の中の親機で来客の姿を確認したら「どうぞー入って下さい」って、家の中で解錠ボタンを押したら門扉のカギが開く仕組み。
ウォ~うらやましいシステムです。
自分でご提案していていつも施主様がうらやましてくなってしまいます。
なんだか今日は空元気。
文章がふわふわしている。
そっか、雨だからか。。。
外仕事専門の私たちは雨の日は、とてもテンションが下がる。
がんばろう。
どうぞこのご提案にご理解をいただけますよに^^;
下のボタンを気が済むまで連打しておくれ。

ざーっと降り注いだ。
そんな中、息子の担任の先生、家庭訪問ありがとうございました。
さて、私はと言えばN様邸のエクステリアプラン作成のため、事務所にこもっておりました。
途中、いただき物のスターバックスのコーヒーを ”どりっぷ”
そうしていた事をすっかり忘れており、いま冷えた状態のコーヒーを飲んだ。
で、軽快にマウスを操作して図面の完成と見積の完成。施主様は豊中市のN様です。
某芸能人と同姓同名のN氏。 ö/” ヒャホー
ご依頼いただきましてありがとうございます。
第一印象、敷地が広いっ!
電動シャッターが付いています。
今回は文化シャッターさんの一品。
とても静かな動作音の電動シャッターです。
すばらしい。
この電動シャッターの商品名「御前様」
だそうです。
商品リンクはこちら
むむ、ごぜんさま?
御前様と言うとどうしても、飲みに行った帰りが遅くなって、帰ったら奥さんに怒られる感じが浮かぶ。。。
とても美しいフォルムで、静かに動くところが売り?と思います。これきっと、夜中に帰ってきても静かだから
ご近隣に迷惑かけませんヨって事でしょうか。
確かに、昔の電動シャッター、手動でもそうでしたが開閉する時に「ギャラギャラ~」と音がしてましたから。
そして、電動の門扉。これいい。
インターホンが鳴って、家の中の親機で来客の姿を確認したら「どうぞー入って下さい」って、家の中で解錠ボタンを押したら門扉のカギが開く仕組み。
ウォ~うらやましいシステムです。
自分でご提案していていつも施主様がうらやましてくなってしまいます。
なんだか今日は空元気。
文章がふわふわしている。
そっか、雨だからか。。。
外仕事専門の私たちは雨の日は、とてもテンションが下がる。
がんばろう。
どうぞこのご提案にご理解をいただけますよに^^;
下のボタンを気が済むまで連打しておくれ。
PR
Comment
コメントの修正にはpasswordが必要です。任意の英数字を入力して下さい。
