外構工事、エクステリア、造園工事、ウッドデッキ、左官、舗装、吹き付け、家の外回りならなんなりと!宝塚市の宝ガーデンです^^
ほんとに一日中雨の月曜日でございます。
それで、一日中デスクワークです。
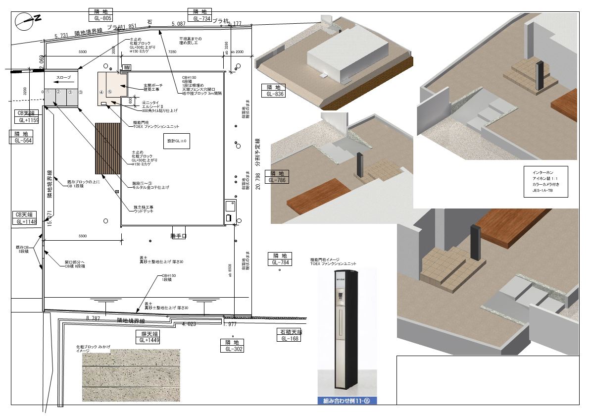
姫路市にて、Y様邸の外構工事。
もう着工まであと数日なのですが
内容に一部変更があり、さっそく再作図。
パパパっと修正です。
こちらを即、着工させていただき月末までの完成をめざしております。
んー、間に合うかな?
"宝ガーデンへメール"
PR
Comment
コメントの修正にはpasswordが必要です。任意の英数字を入力して下さい。
